EasyManua.ls Logo

Grindmaster Cecilware FE75N Series - Page 4

Grindmaster Cecilware FE75N Series
30 pages
Print Icon
To Next Page IconTo Next Page
To Next Page IconTo Next Page
To Previous Page IconTo Previous Page
To Previous Page IconTo Previous Page
Loading...
4 Cecilware
®
Coffee Urns
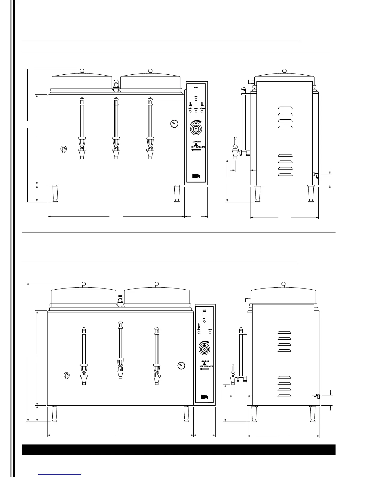
Rough-In Drawings (continued)
FE200 Single 6 Gallon Urn, Adjustable By-pass, Automatic Agitator, and Solid State Timer
CL200 Single 6 Gallon Urn, Adjustable By-pass, Push-Button Agitator, and Electro-Mechanical Timer
FE300 Twin 10 Gallon Urn, Adjustable By-pass, Automatic Agitator, and Solid State Timer
31.2
4.0
16.0
32.0 5.4
21.2
2.5
O
F
F
9
8
7
6
5
4
3
2
1
10
NN10A
3.5
10.1
34.5
4.0
18.0
36.1 5.4
23.4
2.5
O
F
F
9
8
7
6
5
4
3
2
1
10
NN10A
3.5
9.1