EasyManua.ls Logo

Grindmaster Cecilware FE75N Series - Rough-In Drawings

Grindmaster Cecilware FE75N Series
30 pages
Print Icon
To Next Page IconTo Next Page
To Next Page IconTo Next Page
To Previous Page IconTo Previous Page
To Previous Page IconTo Previous Page
Loading...
Coffee Urns Cecilware
®
3
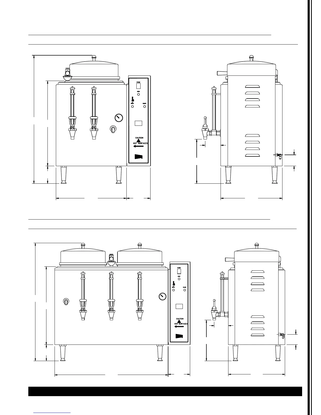
Rough-In Drawings
FE75N Single 3 Gallon Urn, Adjustable By-pass, Automatic Agitator, and Solid State Timer
CL75N Single 3 Gallon Urn, Adjustable By-pass, Push-Button Agitator, and Electro-Mechanical Timer
19.3
4.0
29.1
3.5
2.5
O
F
F
9
8
7
6
5
4
3
2
1
10
NN10A
14.016.0 5.4
10.1
29.1
4.0
19.3
28.0
O
F
F
9
8
7
6
5
4
3
2
1
10
NN10A
5.4
3.5
2.5
14.0
10.1
FE100N Twin 3 Gallon Urn, Adjustable By-pass, Automatic Agitator, and Solid State Timer
CL100N Twin 3 Gallon Urn, Adjustable By-pass, Push-Button Agitator, and Electro-Mechanical Timer
TEMPERATURE CONTROL
195
↓↑
TEMPERATURE CONTROL
195
↓↑