EasyManua.ls Logo

Haier AB092XCERA - Page 101

Haier AB092XCERA
143 pages
Print Icon
To Next Page IconTo Next Page
To Next Page IconTo Next Page
To Previous Page IconTo Previous Page
To Previous Page IconTo Previous Page
Loading...
-
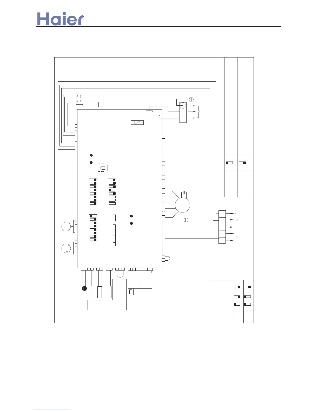
5.2.4. AC142-182XCERA Wiring Diagram
-
>_]]VbTZR\ <Zb >_^UZdZ_^Vb
101-
TRANSFORMER
FUSE1
T3.15A
250VAC
CN19
BL
SW01
ON
1
2 3 4 5 6 7 8
Tm
ON/OFF
CARD
Y/G
BR R BL Y OR
capacitor
2uF 450V
AC FAN MOTOR
M
PIPING
TEMPERATURE
SENSOR
AMBIENT
TEMPERATURE
SENSOR(Ta)
CN7
W
CN6
CN5
CN3
CN1
CN2
CN20
W
CN21
W
CN22
G
8765432
1
ON
SW02
SW03
ON
1
2 3 4 5 6 7 8
CN26
W
CN15
Y
LED
CN24
R
CN10
W
CN14
W
TC2
TC1
CN13
B
CN12
W
LED2 LED1
LED4LED3
CN16
R
CN8
BL
C
B A
WIRED
CONTROLLER
TO
OUTDOOR
UNIT
C
A B
Q
P
BL
BR
TO OUTDOOR
UNIT
Y/G
N
L
CN27
W
CN11
W
SWING
MOTOR
M
SWING
MOTOR
M
Please plug in the short-connector to CN16
SW03-4
ON
ON
SW03-4
INFRARED
CONTROLLER
WIRED
CONTROLLER
Please pull out the short-connector from
CN16 (default set from factory).The short
-connector is in the accessories.
SW03-2 SW03-3
ON
SW03-1
SW03-3SW03-2SW03-1
ON
14000
BTU
18000
BTU
B: BLACK BR: BROWN
R: RED W : WHITE
Y/G : YELLOW/GREEN
BL:BLUE Y:YELLOW
ORORANGE
0010578081

Related product manuals