EasyManua.ls Logo

Haier AB092XCERA - Page 35

Haier AB092XCERA
143 pages
Print Icon
To Next Page IconTo Next Page
To Next Page IconTo Next Page
To Previous Page IconTo Previous Page
To Previous Page IconTo Previous Page
Loading...
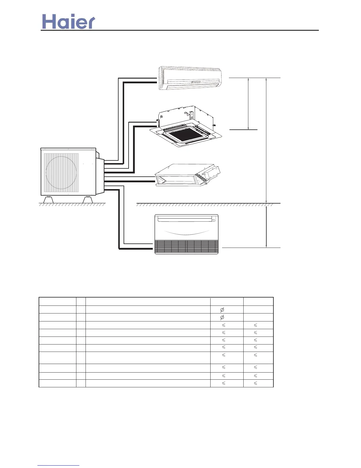
gsp ztztxr vpxr~s txqy|wl~tyxI zvpl}p |pqp| ~sp qyvvy,txr ~lmvpK
Zp}n|tz~tyx}
f~lxol|o
WI XI YIZ vt{*to ztzp
WI XI YIZ ]l} ztzp
ww
_~pw
al-tw*w
hxt~
`M Eyxp ,l.F
`N Eyxp ,l.F
`O Eyxp ,l.F
s
^H
^J
ww
w
w
w
w
w
w
ft/p yq ~sp vt{*to }top nyxxpn~tyx ztzp
dtzp vpxr~s ,spx ~sp nywz|p}}y| nyxxpn~} ,t~s ~,y txoyy| *xt~}
Z|yz mp~,ppx p+p|. ~,y txoyy| *xt~}
Z|yz mp~,ppx ~sp y*~oyy| *xt~ lxo ~sp txoyy| *xt~
[
[
ft/p yq ~sp rl} }top nyxxpn~tyx ztzp
dtzp vpxr~s ,spx ~sp nywz|p}}y| nyxxpn~} ,t~s ~,y txoyy| *xt~}
dtzp vpxr~s ,spx ~sp nywz|p}}y| nyxxpn~} yxv. yxp txoyy| *xt~
Z|yz mp~,ppx ~sp y*~oyy| *xt~ lxo ~sp txoyy| *xt~
RKOQ
UKQN
`MH`NH`OH`P w
gy~lv vt{*to ztztxr vpxr~sE_~ t} xy xppo ~y nsl|rp loot~tyxlv
|pq|trp|lx~ ,t~stx ~st} +lv*pF
`P Eyxp ,l.F w dtzp vpxr~s ,spx ~sp nywz|p}}y| nyxxpn~} yxv. yxp txoyy| *xt~
b\
b]
b_
h
aY
/
0
2
1
b^
q
u
u
qp
qp
tp
qp
ru
u
qu
qp
ru
ru
vp
ru
aZ
ML
`twt~l~tyx} +lv*p} yx ~sp ztztxr ,y|u K
AU28-342XHERA
- -
>_]]VbTZR\ <Zb >_^UZdZ_^Vb
35

Related product manuals