EasyManua.ls Logo

Haier AB092XCERA - Page 36

Haier AB092XCERA
143 pages
Print Icon
To Next Page IconTo Next Page
To Next Page IconTo Next Page
To Previous Page IconTo Previous Page
To Previous Page IconTo Previous Page
Loading...
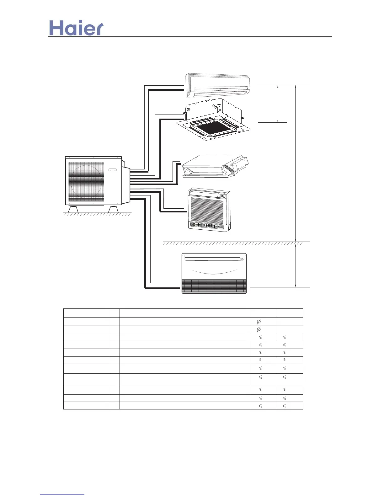
>_]]VbTZR\ <Zb >_^UZdZ_^Vb
The piping length information, please refer the following table.
Descriptions
Standard
A, B, C, D, E liquid pipe
A, B, C, D,E Gas pipe
mm
Item
Maximum
Unit
L1 (one way)
L2 (one way)
L3 (one way)
h
H +
H -
mm
m
m
m
m
m
m
Size of the liquid side connection pipe
Drop between every two indoor units
Drop between the outdoor unit and the indoor unit
/
/
Size of the gas side connection pipe
Drop between the outdoor unit and the indoor unit
6.35
9.52
L1+L2+L3+L4+L5 m
Total liquid piping length(It is no need to charge additional
refrigerant within this value)
L4 (one way) m
L1
L2
L5
h
H +
A
B
E
C
L3
1
5
5
10
10
40
10
25
5
15
10
25
25
60
25
Conneting pipe length
Conneting pipe length
Conneting pipe length
Conneting pipe length
L4
D
L5 (one way) m
10 25
Conneting pipe length
H -
10
`twt~l~tyx} +lv*p} yx ~sp ztztxr ,y|u K
AU362XHERA
- 1-2
- -36

Related product manuals