EasyManua.ls Logo

Haier AD140S2SM3FA - Wiring Diagram

Haier AD140S2SM3FA
257 pages
To Next Page IconTo Next Page
To Next Page IconTo Next Page
To Previous Page IconTo Previous Page
To Previous Page IconTo Previous Page
Loading...
121
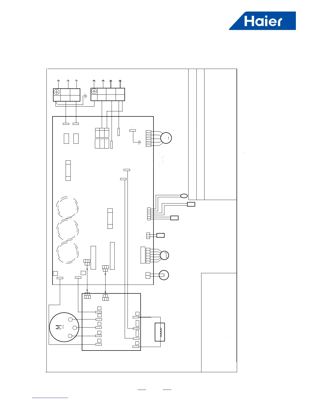
3. Wiring Diagram
1U71S2SM1FA
BBLACK
Y/GYELLOW/GREEN
WWHITE
ORORANGE
BLBLUE
RRED
AC-N OUT
CN9
CN10
AC-L OUT
M
CN22
CN3
PE
POWER SUPPLY
W
Y/G
CN36
COMB
COMA
N
R
CN1
CN2
AC-N
AC-L
FUSE1
T25A 250VAC
CN24
CN23
MODULE COM
MODULE POWER
TO
INDOOR UNIT
CN3
CN10
B
BL
BL
OR
CN5
CN1
CN4
CN8
CN9
CN2
CN11
CN6
CN7
REACTOR
B
R(U)
S(V)
C(W)
B
W
R
DC FAN
MAIN CONTROL PCB
DRIVE MOUDLE
E
E
Y/G
W
B
Y/G
1(N)
2(L)
3(C)
W
BL
U
V
W
P N
AC-L
LI
AC-N L0
CN25
N
P
CN28
N
L
CN11
4-WAY
VALVE
G
G
B
CAP
CN15
VALVE A
LECTRIC
XPANSION
M
VALVE
MOTOR
NOTES:
THE DOTTED PARTS
ARE OPTIONAL
CAP
CAP
COMPRESSOR
DON'T TOUCH CAPACITOR, EVEN AF TER PLUG-OFF ( DANGER OF ELECTRI C SHOCK)
The capacitor retains high vol
tage even after the plug-off.
For your safety, be sure to wait at least 5 minutes. after
plug off and use a tester to confirm the voltage between
connector P and N is less than DC 10V before start servicing.
CN7
CN6
AC-N OUT
AC-L
OUT
W
B
CAUTION
WARNING
FUSE2
T1
A
250VAC
QX
CN47
SUCTION
TEMPERATURE
SENSOR
DEFROST
TEMPERATURE
SENSOR
COMPRESSOR
TEMPERATURE
SENSOR
AMBIENT
TEMPERATURE
SENSOR
TC
CS HW
CN17
G:GREY

Other manuals for Haier AD140S2SM3FA

Related product manuals