EasyManua.ls Logo

Haier AD140S2SM3FA - Page 131

Haier AD140S2SM3FA
257 pages
To Next Page IconTo Next Page
To Next Page IconTo Next Page
To Previous Page IconTo Previous Page
To Previous Page IconTo Previous Page
Loading...
128
3U55S2SR2FA
3U70S2SR2FA
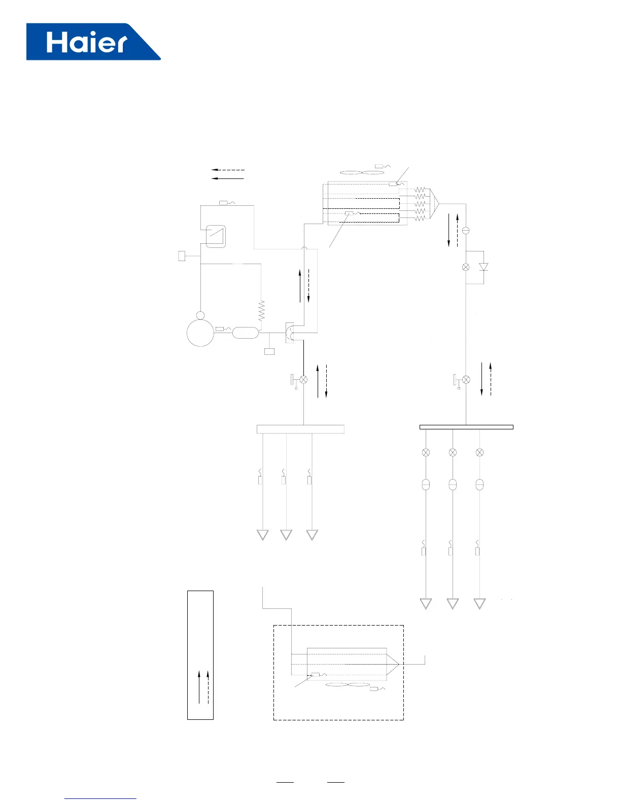
Comp-
ressor
Discharge temp.
sensor
Oil
separator
Capillary tube
Ø2.7*Ø1.0*1400
High pressure
switch
4-way valve
Suction temp.
sensor
Low pressure
switch
Accumulator
Gas stop valve
Outdoor
heat
exchanger
temp.
sensor
FAN-OUT
Outdoor
ambient
temperatur
e
sensor
Defrost
sensor
Distributor
Strainer
Check valve
Liquid stop vavle
5/8
3
Strainer
Unit A liquid pipe temp. sensor
Indoor unit A
Strainer
Unit B liquid pipe temp. sensor
Indoor unit B
Strainer
Unit C liquid pipe temp. sensor
Indoor unit C
Unit A gas pipe temp. sensor
Unit B gas pipe temp. sensor
Unit C gas pipe temp. sensor
Indoor unit A
Indoor unit B
Indoor unit C
4-way valve coil:
OFF
ON
Refrigerant flow in cooling
Refrigerant flow in heating
FAN-IN
Indoor
ambient
temperature
sensor
Indoor
heat
exchanger
temp.
sensor
EEV A
B VEE
EEV C
EEV O

Other manuals for Haier AD140S2SM3FA

Related product manuals