EasyManua.ls Logo

Haier AU06IFPERA - Page 11

Haier AU06IFPERA
28 pages
To Next Page IconTo Next Page
To Next Page IconTo Next Page
To Previous Page IconTo Previous Page
To Previous Page IconTo Previous Page
Loading...
9
Installation instruction
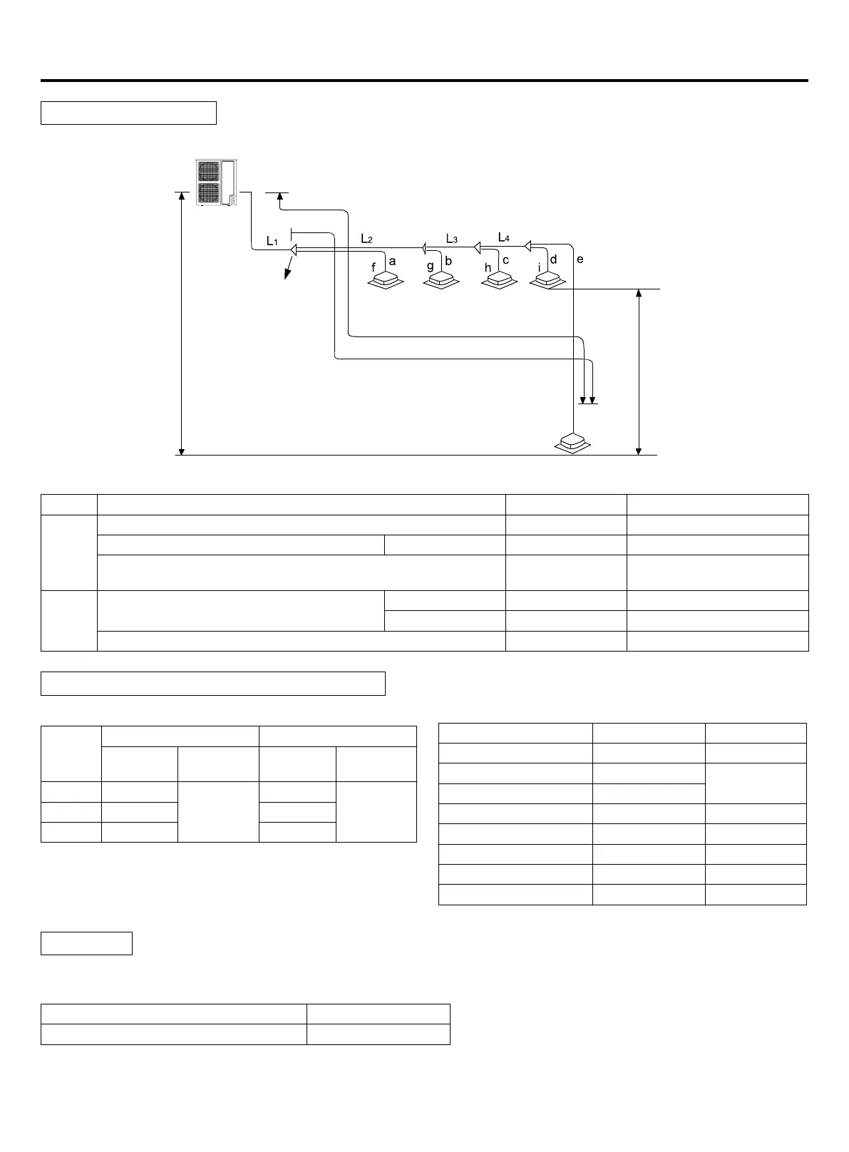
Long pipe and high drop
1. Allowable pipe length and height difference
Permissible value Piping part
Piping
length
Total length of piping (actual length) 300m L1+L2+L3+L4+a+b+c+d+e
Longest piping L Actual length 150m L1+L2+L3+L4+e
Piping length of indoor unit which is furthest to the rst branch
piping L (*)
40m L2+L3+L4+e
Drop
height
Drop height between indoor and outdoor unit
H
Up outdoor 50m ——
Under outdoor 40m ——
Drop height between indoor units h 15m ——
Maximal length and drop height permissible of refrigerant piping
Drop height between indoor and outdoor units
Drop height between
indoor units
h≤10m
Length of the longest piping after the
rst branch piping L
First branch piping
Outdoor unit
Indoor unit
Length of the longest piping L
A. Outdoor unit
Unit pipe spec and connection method (unit: mm)
Model
Gas pipe side Liquid pipe side
Diameter
(mm)
Connecting
method
Diameter
(mm)
Connecting
method
AU04 Ø15.88
Flared joint
Ø9.52
Flared jointAU05 Ø15.88 Ø9.52
AU06 Ø15.88 Ø9.52
B. Indoor unit
Please refer to the indoor air conditioner manul.
Connecting method: Flared joint
C. Pipe spec and the torque
Note: If the copper pipe with outer diameter 19.05 is coil
pipe, the thickness should be over 1.1.
Diameter (mm) Thickness (mm) Torque (N.m)
Ø6.35 0.8 16~20
Ø9.52 0.8
40~50
Ø12.7 1.0
Ø15.88 1.0 90~120
Ø19.05 1.0 100~140
Ø22.22 1.1 ——
Ø25.4 1.2 ——
Not less than Ø28.58 More than 1.4 ——
Branch pipe
Outdoor unit type
Branch pipe selection:
Total indoor capacity (100W) Model (optional)
Less than 335 FQG-B335A

Other manuals for Haier AU06IFPERA

Related product manuals