EasyManua.ls Logo

Haier AU06IFPERA - IFPERA Series Specifications

Haier AU06IFPERA
28 pages
To Next Page IconTo Next Page
To Next Page IconTo Next Page
To Previous Page IconTo Previous Page
To Previous Page IconTo Previous Page
Loading...
5
Note:
1. In snowy area, install the unit under the bracket or the snow-proof cover against the accumulative snow on the unit.
2. Do not install the unit at the place where the ammable gas will leak.
3. Install the unit at the strong enough place.
4. Install the unit at the at place.
5. When being installed at the place with strong wind, set the air outlet of the unit and the wind direction vertical.
6. The installation site should be far away from the place where the noise is higher. At the same time for the noise of
higher places should ensure that the outdoor machine vibration and wall insulation measures to prevent vibration
caused by thin wall or acoustic noise problems.
7. Aluminum foil n is very sharp, pay attention to prevent scratches.
8. In addition to the maintenance of the roof, or the installation of outdoor machines, other people can not contact the
outdoor machine.
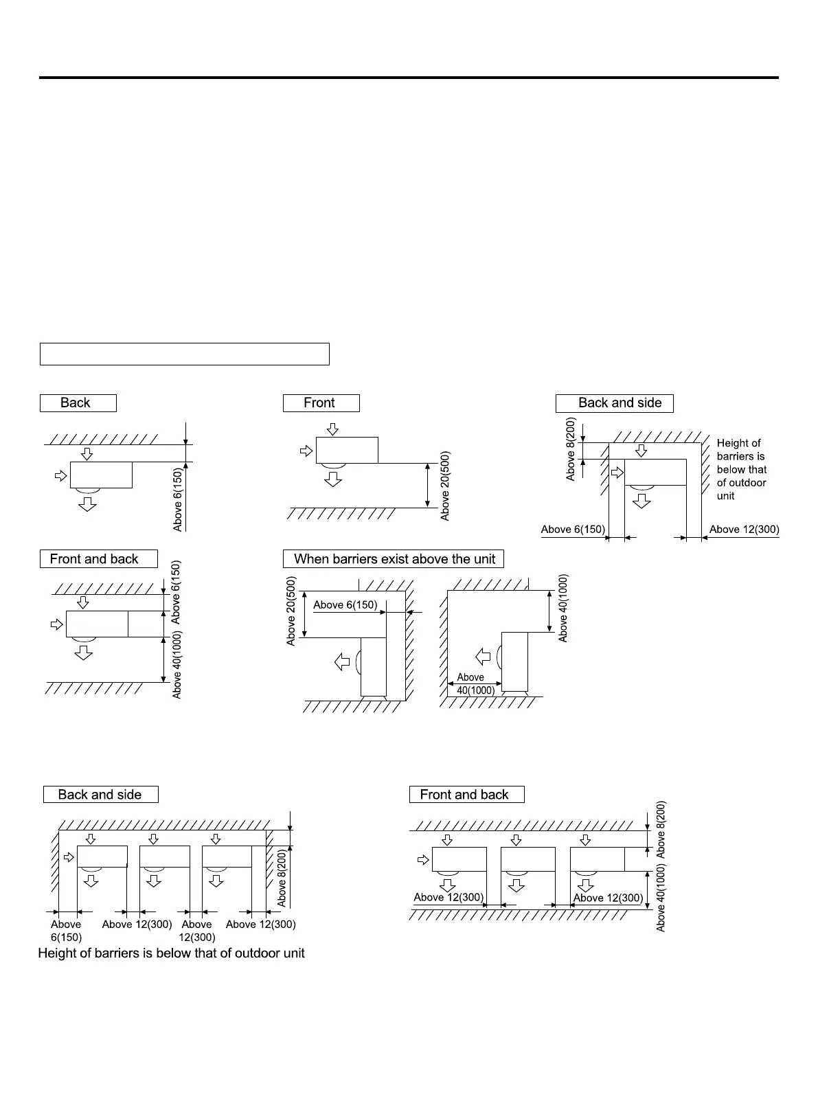
(3) Installation and maintenance space
Selection of installation location of outdoor
(1) Single-unit installation (unit: in.(mm))
The top and two side surfaces must be exposed to open space, and barriers on at least one side of the front and back
shall be lower than the outdoor unit.
Installation instruction
(2) Multi-unit installation (unit: in.(mm))

Other manuals for Haier AU06IFPERA

Related product manuals