EasyManua.ls Logo

Haier HSU-24C13 HSU-22C13 - INDOOR UNIT WIRING SCHEMATICS; HSU-18;22 C13 Indoor Unit Wiring; HSU-22 C13 Outdoor Unit Wiring; HSU-18 C13 Outdoor Unit Wiring

Haier HSU-24C13 HSU-22C13
48 pages
To Next Page IconTo Next Page
To Next Page IconTo Next Page
To Previous Page IconTo Previous Page
To Previous Page IconTo Previous Page
Loading...
Air Conditioner
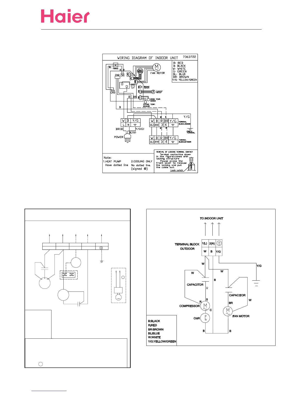
WIRING DIAGRAM FOR INDOOR UNITS
˗
WIRING DIAGRAM FOR OUDOOR UNITS
˗
HSU-22C13
WIRING DIAGRAM
0010555054
3.The 1 is optional part
1.See above for wiring of heat pump type.
2.There are no dotted lines on cool only type.(marked with @),
Wire is connected from BR(marked with @@) on terminal block
to W.
NOTE:
GREEN
G:
BL:
BLUE
WHITE
W:
YELLOW
Y:
BROWN
BR:
RED
R:
BLACK
B:
BR
BR
CAPACITOR
CAPACITOR
R
R
W
W
W
W
W
1(L)
2(N)
34
B
B
B
B
B
@@
@
@@
Y/G
Y/G
TO INDOOR UNIT
TO INDOOR UNIT
fresh air
Device for
1
M
C
S
COMP
R
MOTOR
FAN
FOUR
-WAY
VALVE
HSU-18/22C13
HSU-18C13
Edition:2006/01/09
43

Related product manuals