EasyManua.ls Logo

Haier HSU12XCK

Haier HSU12XCK
51 pages
To Next Page IconTo Next Page
To Next Page IconTo Next Page
To Previous Page IconTo Previous Page
To Previous Page IconTo Previous Page
Loading...
HSU09/12XCK-SM
DomesticAirConditioner
42
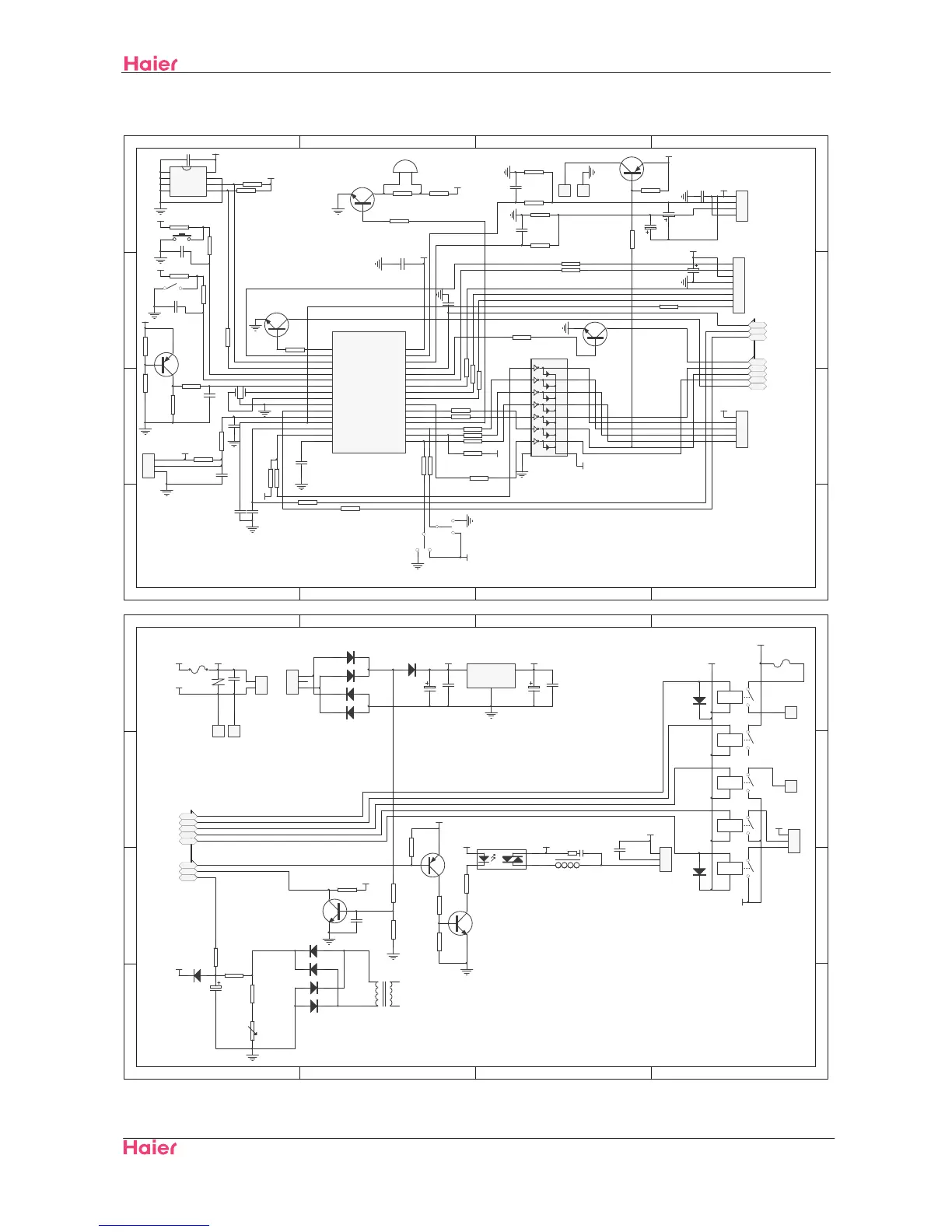
10.3 CIRCUIT DIAGRAM
1 2 43
A
B
C
D
4
321
D
C
B
A
P04/INT24
1
P05/INT25
2
P06/INT26
3
P07/INT27
4
P60
5
P61
6
RES
7
X0
8
X1
9
VSS
10
P37/BUZ/PPG
11
P36/INT12
12
P35/INT11
13
P34/TO/INT10
14
P33/EC
15
C
16
P32/UI/SI
17
P31/UO/SO
18
P30/UCK/SCK
19
P50/PWM
20
P70
21
P71
22
P72
23
P40/AN0
24
P41/AN1
25
P42/AN2
26
P43/AN3
27
P00/INT20/AN4
28
P01/INT21/AN5
29
P02/INT22/AN6
30
P03/INT23/AN7
31
VCC
32
IC 1
MB 8 9F 2 0 2
R38
2K
C17
0.1UF
R39
2K
R1
10K
R2
10K
+5
C7
0.1UF
16
15
3 14
4 13
5 12
O6
O7
I2
I3
I5
I6
11
O2
O4
O5
I1
I4
I7
O1
O3
7
6
10
COM
9
GND
8
1
2
IC 3 2 00 3
R18 10K
R19 10K
R20
10K
R10
3.3K
R11
3.3K
R12
3.3K
+5
R21
10K
R13
3.3K
+5
+5V
1
2
3
CN8
B3B-EH-A
R22
51K
R3
1K
C9
0.01UF-50V
C1
1nF
C2
0.01UF
1
2
3
4
5
CN5''
S5B-PH
+12V
+12V
R14 4 .7K
R4
2K
R5
10K
ZJ
C3 0.01 UF
+5
C4 0.01UF
+5v
SW1
R6
2K
R7
10K
A0
1
A1
2
A2
3
VSS
4
SDA
5
SCL
6
TEST
7
VCC
8
IC 2
AT24C0 2B
+5vC18
0.1UF
R24
560Ω
R8
10K
R9
10K
+5v
R15
4.7K
R33
2K
R34
22
BUZZ
+12V
R28
100 Ω
R29
100 Ω
R26
100 Ω
R30
1K
+5V
R16
4.7K
C19
0.1UF
C13
0.1UF
+5V
R31 1K
R35
3.3K1%
C5
0.01UF
C15
0.01UF
R32
1K
R23
20K 1%
1
2
3
4
CN6
B4B-XH
+5V
C16
0.1UF
R174.7K
R37
10K
+12V
R36
1K
E2
4.7uF-16V
E3
4.7uF-16V
5220
3,3(
R40
1K
R
SRCK
RCK
SER
COM3
COM2
R25 560Ω
R27
56
1
CON7
1
CON8
GND
+5V
A
B
C
D
CT
50HZ
PGO
WF
ST
FLZ
YJ
HEAT
R101
1K
R102
1K
R103
1K
SW2
SW3
+5
N1 2 SC2 41 2
N2
2SC2412
N3
2SC2412
P1
2SA1037AK
P2
2SB1182
XT1
8M
Fra sh ai r
1
2
3
4
5
6
7
8
CN7 S8B-PH /89401-0810
C23
1nF
E8
100uF-16V
RED BLACK
step motor
CT
50HZ
WF
FLZ
ST
YJ
HEAT
PGO
1 2 43
A
B
C
D
4
321
D
C
B
A
CT
A057 R
R52
39
VR
VR-10 1T-F
R51
1K
E6
R50
1K
D1 0
RLS4148
+5V
FUSE1
T3. 15A-25 0 VAC
RV1 C20
0.1UF-275VAC
D9
1N4007
C21
0.1UF
E5
470UF-16V
E4
2 2 0 0 u f-2 5 v
Vin
1
G
ND
2
Vout
3
IC4 1.5A-7805
C22
0.1UF
R43
10K
R44
4.7K
C24
0.1UF
R42
10K
+5V
R45
4.7K
+5V
R46
4.7K
R47
4.7K
R48
68
IC 5
1A-600V-TLP3526
+12V
K1
G4A-1A(-E)
K2 835L-1AB-C
K3
K5
+12V+5V+12 V
K4
D11
RLS4148
D12
RLS4148
L L1
L
L1
1
HP2
1
CON2
1
2
3
CN2
B3P5-VH-3
N
outdoor motor
4wayvalve
1
2
3
CN9
B3P5-VH-3
L1
C26
1.2uF-450VAC
N
FUSE2
T10A-250 VAC
1
CON3
1
HP1
CT
50HZ
PGO
WF
ST
FLZ
YJ
HEAT
L1
171UH-800MA-1KHZ
1
2
CN1
1
2
3
CN3
A
1
K
2
D4
1N4007
D3
1N4007
D2
1N4007
D1 1 N400 7
Thermistor Ion Generator
N
R
C
RC1
0.01uf-12
A
1
K
2
D5
RLS4148
D6
RLS4148
D7
RLS4148
D8
RLS4148
P3
2SA1037AK
N4
2SC2412
N5
2SC2412
BLUE
Thermi st or
white
black
Io n Ge n era t o r
white
CT
50HZ
WF
FLZ
ST
YJ
HEAT
PGO
Wiring Diagrams

Other manuals for Haier HSU12XCK

Related product manuals