EasyManua.ls Logo

Hanbell RC2-100A - Page 59

Hanbell RC2-100A
84 pages
Print Icon
To Next Page IconTo Next Page
To Next Page IconTo Next Page
To Previous Page IconTo Previous Page
To Previous Page IconTo Previous Page
Loading...
Technical Manual VERSION 2.0 -10-18-2018
59

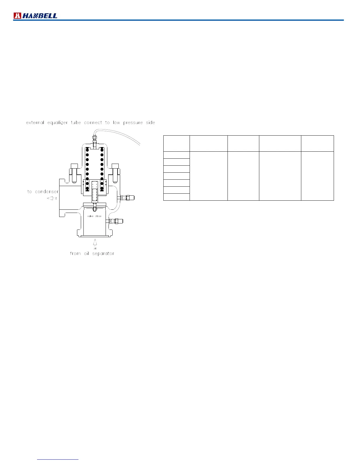
t. Minimum pressure valve(MPV)
Minimum pressure valve is useful in cold start condition. During the cold start period, because the system’s condensing
temperature is still low, the discharge pressure will stay at a quite low level which means the pressure differential
between discharge and suction side will not be enough for compressor to act normally. Under such working condition,
compressor might have difficulties to load itself. Oil supply to bearings and internal cooling might be not enough which
will cause severe damage to those moving parts in the end. With minimum pressure valve, the pressure differential can
be built shortly after the start up, so the capacity control and oil supply to those moving parts won’t be a problem.
Therefore, the compressor protection can be achieved. In addition to protection function, it can also act as check valve
to reduce the reverse running time after compressor’s stopping.
Flange on minimum pressure valves are provided for the ease of installation. It can be installed on either compressor’s
discharge port or external oil separator’s discharge port (F type compressor only). The installation and specification are
shown as below:
Model
Opening
pressure
Max.
pressure
Working
temperature
Pressure
drop
1 1/2"
3.6±0.3Bar
28Bar
<120
<0.1Bar
2"
2 1/2 "
3"
4"
5"
6"
Figure 53 Installation of MPV
Please consult Hanbell representatives for the detailed
outline and application

Related product manuals