EasyManua.ls Logo

Haws 1201S - Page 14

Haws 1201S
21 pages
Print Icon
To Next Page IconTo Next Page
To Next Page IconTo Next Page
To Previous Page IconTo Previous Page
To Previous Page IconTo Previous Page
Loading...
10
11
19
13
14
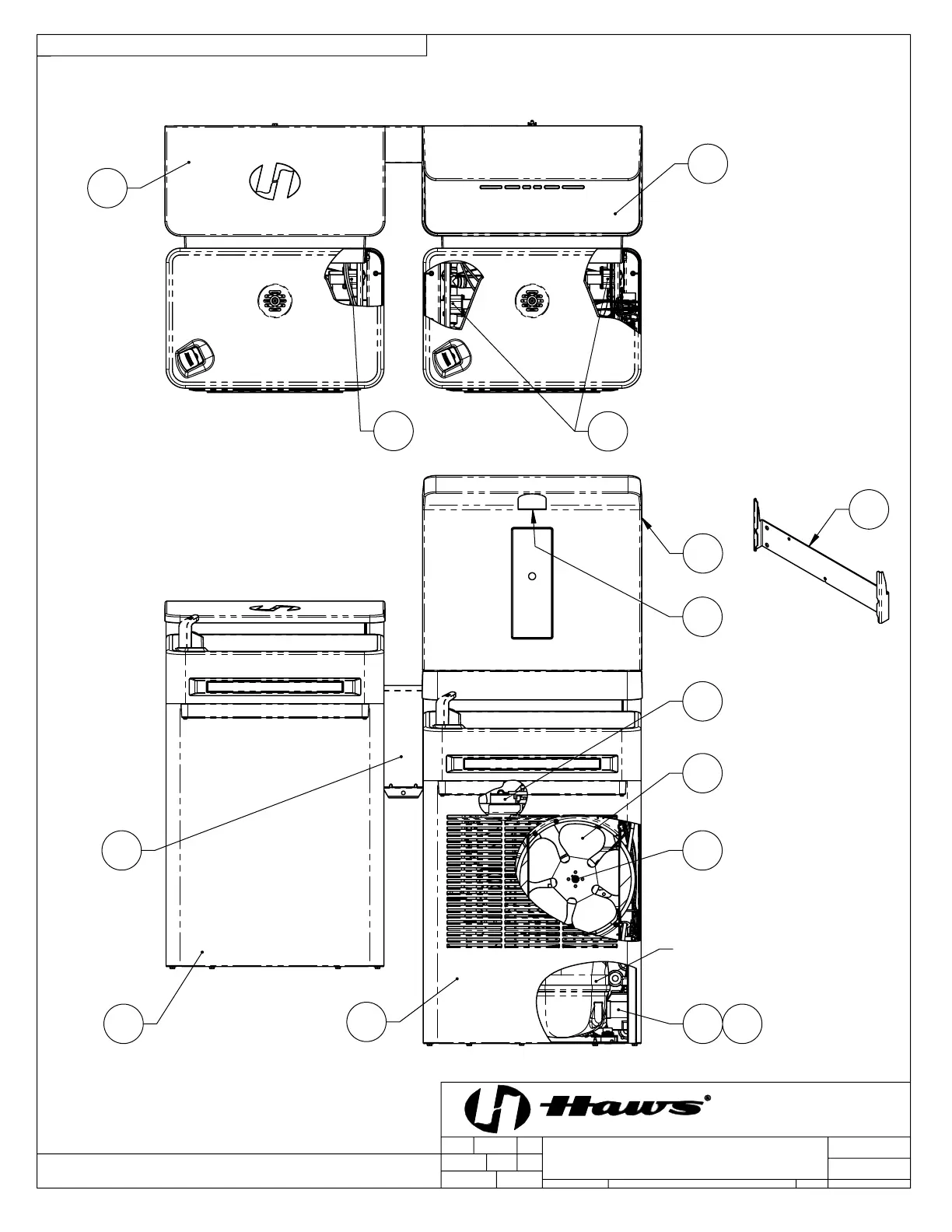
COMPRESSOR
16 17
15
9
21
6
18
12
12
PAGE 14 OF 21
PARTS BREAKDOWN VIEWS ARE REPRESENTATIVE ONLY. YOUR MODEL MAY VARY.
SEE PREVIOUS SHEET FOR PART NUMBERS & ADDITIONAL PARTS.
20
THIS DOCUMENT IS TRUE AND CORRECT AT TIME OF PUBLICATION. CONTINUED PRODUCT
IMPROVEMENTS MAKE SPECIFICATIONS AND MEASUREMENTS SUBJECT TO CHANGE WITHOUT NOTICE.
APPROVED:
DRAWN:
PART NUMBER
SCALE:
REVISION
JL
07/25/18
5
12XX ELECTRIC WATER COOLERS
1:8
TM
09/29/20
DRAWING TYPE:
SIZE: A
5343
BY:
DHP
PARTS BREAKDOWN
DATE:
DATE:
REV. ECN:
5595
CHK'D.:
MODEL(S)
1455 KLEPPE LANE
SPARKS, NEVADA 89431
(775) 359-4712 FAX (775) 359-7424
E-MAIL: HAWS@HAWSCO.COM
WEBSITE: WWW.HAWSCO.COM
DHP
ECN:
WHEN ORDERING PARTS, PLEASE
SPECIFY PART NUMBER
SHEET 2 OF 2
0510000866
© 2020 Haws Corporation - All Rights Reserved.
HAWS® and other trademarks used in these materials are the exclusive property of Haws Corporation.

Related product manuals