EasyManua.ls Logo

Haws 1201S - Filter Replacement

Haws 1201S
21 pages
Print Icon
To Previous Page IconTo Previous Page
To Previous Page IconTo Previous Page
Loading...
© 2020 Haws Corporation - All Rights Reserved. HAWS® and other trademarks used in these materials are the exclusive property of Haws Corporation.
THIS DOCUMENT IS TRUE AND CORRECT AT TIME OF PUBLICATION. CONTINUED PRODUCT
IMPROVEMENTS MAKE SPECIFICATIONS AND MEASUREMENTS SUBJECT TO CHANGE WITHOUT NOTICE.
APPROVED:
DRAWN:
PART NUMBER
SCALE:
REVISION
JL
07/25/18
5
1:8
TM
09/29/20
DRAWING TYPE: SIZE: A
5343
BY:
DHP
INSTALLATION
DATE:
DATE:
REV. ECN:
5595
CHK'D.:
MODEL(S)
1455 KLEPPE LANE
SPARKS, NEVADA 89431
(775) 359-4712 FAX (775) 359-7424
E-MAIL: HAWS@HAWSCO.COM
WEBSITE: WWW.HAWSCO.COM
DHP
ECN:
SHEET 7 OF 7
0510000866.D
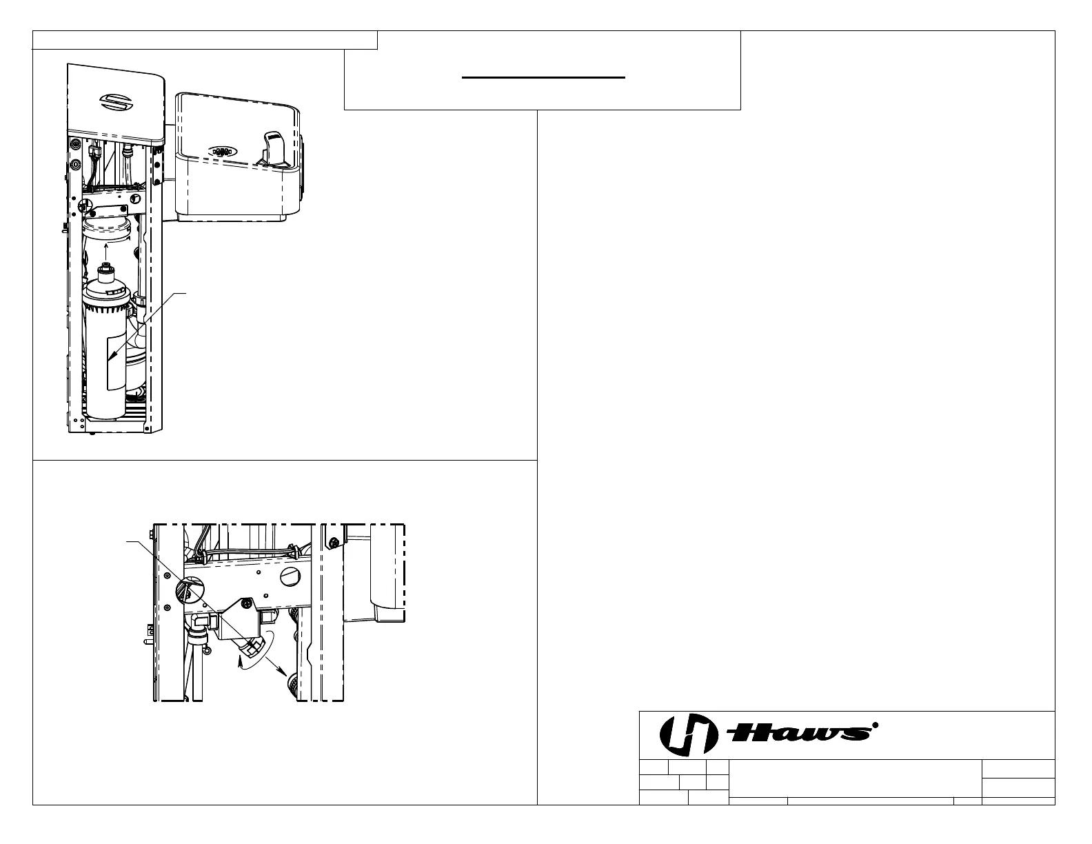
12XX ELECTRIC WATER COOLERS
NOTE THE LEFT EDGE
OF THE LABEL FACING
OUT THE SIDE DURING
INSERTION OF FILTER
INTO FILTER HEAD
7/8"
WRENCH
FLATS
Y-STRAINER CLEANING
PAGE 21 OF 21
MAINTENANCE
FILTER REPLACEMENT
PAGE 21 OF 21

Related product manuals