EasyManua.ls Logo

Haws 1201S - Page 19

Haws 1201S
21 pages
Print Icon
To Next Page IconTo Next Page
To Next Page IconTo Next Page
To Previous Page IconTo Previous Page
To Previous Page IconTo Previous Page
Loading...
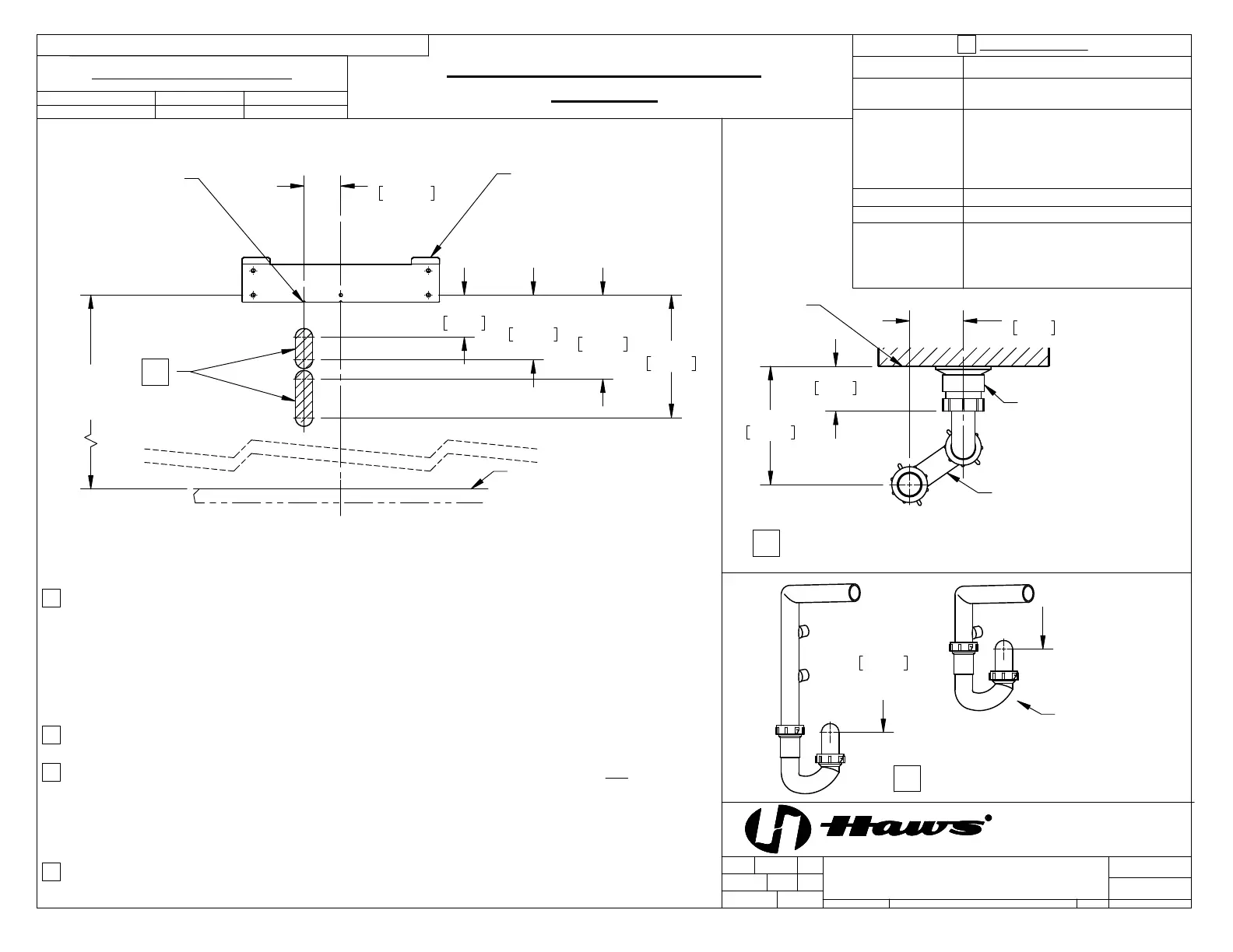
8 3/4"
222mm
FROM HANGER
BRACKET HOLES
PAGE 19 OF 21
RETROFIT INSTALLATION
DETAILS
NOTES:
THE 12XX COOLER SERIES IS ABLE TO RETROFIT IN PLACE OF A NUMBER OF COMPETITOR MODELS. SEE
RETROFIT TABLE ABOVE FOR PARTIAL LIST OF COOLERS ABLE TO BE REPLACED BY THIS ONE.
THE FOLLOWING DISCLAIMERS APPLY:
THE 12XX COOLER CENTERLINE MAY NOT MATCH THE OLD COOLER'S CENTERLINE, SINCE THE 12XX
COOLER DRAIN MUST BE 2 5/8" OFF OF CENTER. THIS MAY AFFECT ADA COMPLIANCE.
FOR HI-LO COOLER RETROFITS, EXISTING RIGHT-SIDE COOLER MUST BE THE LOW COOLER. DRAIN,
WATER, AND ELECTRIC SERVICES MUST BE POSITIONED BEHIND RIGHT-SIDE UNIT.
THERE MUST BE WALL BLOCKING OR OTHER STRUCTURAL MATERIAL BEHIND HAWS MOUNTING HOLES.
VERIFY THAT DRAIN, ELECTRIC, & WATER SERVICES ARE LOCATED WITHIN BOUNDARIES SPECIFIED ON
THIS SHEET AND THE NEXT. SOME RETROFITS MAY REQUIRE THE ELECTRIC OUTLET TO BE MOVED.
THE P-TRAP IS NOT SUPPLIED. THE VERTICAL DIMENSIONS GIVEN ARE BASED UPON INSTALLATION USING
OF A KEENEY 200W P-TRAP, AND SHOULD THEREFORE BE REGARDED AS REFERENCE-ONLY.
THE CENTERLINE OF THE DRAIN STUB-OUT MUST BE BETWEEN 3" [76mm] & 4-5/8" [118mm] OR
BETWEEN 6"
[152mm] & 8-3/4" [229mm] BELOW THE LOWERMOST EWC MOUNTING BRACKET HOLES IN ORDER FOR THE
P-TRAP TO AFFIX PROPERLY TO THE DRAIN TAILPIECE.
- DEPENDING ON STUB-OUT HEIGHT, SOME TRIMMING OF THE TAILPIECE WILL BE REQUIRED.
- MOUNTING THE STUB-OUT IN THE HIGHER RANGE WILL REQUIRE TRIMMING THE TAILPIECE ABOVE THE
LOWER DRAIN HOSE BRANCH. IN THIS INSTANCE, THEREFORE, A HI-LO COOLER CANNOT BE
INSTALLED.
WHATEVER P-TRAP AND STUB-OUT PLUMBING ARE USED, CARE SHOULD BE TAKEN TO ENSURE THAT THE
P-TRAP CAN SEAL TO THE STUB-OUT PROPERLY AND STILL ALIGN TO THE DRAIN TAILPIECE (LOCATED AT
THE GIVEN DIMENSIONS).
3
4
5
6
HIGHEST & LOWEST
P-TRAP HEIGHTS
5
LOW COOLER BRACKET HEIGHT
ADULT STANDING ADULT ADA CHILD ADA
33 7/8" 28 3/8" 25 3/8"
RETROFIT TABLE
MANUFACTURER MODEL
HAWS
ALL MODELS STARTING WITH
HWUACP
ELKAY/HALSEY
TAYLOR
- ALL MODELS STARTING WITH EB,
EI, EMA, EN, EZ, HAC HVR, LI, LMA,
LZ, TB, & TI
- SINGLE COOLER MODELS
STARTING WITH VRC & LVR
OASIS ALL VERSACOOLER II MODELS
SUNROC ALL MODELS STARTING WITH ADA
MURDOCK
A171, A171.8, & A172.8UBL MODELS
NOTE: THE WATER STOP VALVE
MUST BE RELOCATED TO RETROFIT
A FILTERED 12XX COOLER
3
PAGE 19 OF 21
DRAIN STUB-OUT/P-TRAP DETAIL
(VIEWED FROM TOP)
DRAIN
STUB-OUT
(NOT SUPPLIED)
1-1/4" P-TRAP
(NOT SUPPLIED)
WALL
FACE
6
2 7/8"
73mm
6 5/16"
161mm
2 3/8"
61mm
MAX
CAN'T USE WITH
HI-LO MODELS.
3" [76mm]
FROM HANGER
BRACKET HOLES
© 2020 Haws Corporation - All Rights Reserved. HAWS® and other trademarks used in these materials are the exclusive property of Haws Corporation.
THIS DOCUMENT IS TRUE AND CORRECT AT TIME OF PUBLICATION. CONTINUED PRODUCT
IMPROVEMENTS MAKE SPECIFICATIONS AND MEASUREMENTS SUBJECT TO CHANGE WITHOUT NOTICE.
APPROVED:
DRAWN:
PART NUMBER
SCALE:
REVISION
JL
07/25/18
5
1:8
TM
09/29/20
DRAWING TYPE: SIZE: A
5343
BY:
DHP
INSTALLATION
DATE:
DATE:
REV. ECN:
5595
CHK'D.:
MODEL(S)
1455 KLEPPE LANE
SPARKS, NEVADA 89431
(775) 359-4712 FAX (775) 359-7424
E-MAIL: HAWS@HAWSCO.COM
WEBSITE: WWW.HAWSCO.COM
DHP
ECN:
SHEET 5 OF 7
0510000866.D
12XX ELECTRIC WATER COOLERS
5
FLOOR LINE
MOUNTING BRACKET
HAWS COOLER
NOTE LOCATING
NOTCH FOR
DRAIN STUB-OUT
CENTERLINE
PERMISSIBLE LOCATIONS FOR DRAIN STUB-OUT
3"
76mm
4 5/8"
117mm
6"
152mm
8 3/4"
222mm
BRACKET
HEIGHT
(SEE TABLE
ABOVE)
2 5/8"±1/4"
67mm±6

Related product manuals