EasyManua.ls Logo

hergom C-16/80 - Electrical Outline

hergom C-16/80
Print Icon
To Next Page IconTo Next Page
To Next Page IconTo Next Page
To Previous Page IconTo Previous Page
To Previous Page IconTo Previous Page
Loading...
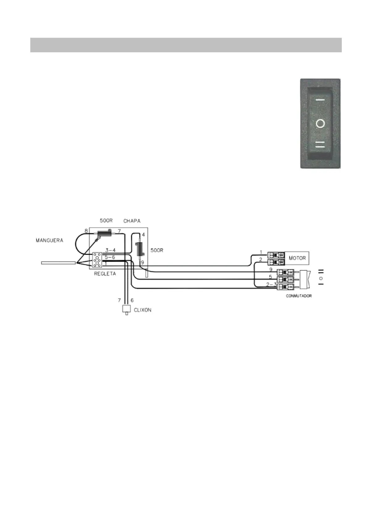
Switch positions.
- POSITION "0" : The fan will start-up at SILENT SPEED (ECO) automatically when a fire
is burning in the unit and the cast iron parts reach a temperature of 50 ºC (in the area
where the thermostat is located).
When the flame goes out and the temperature of the cast iron parts falls below 50 °C, the
fan stop.
This position is RECOMMENDED when the user wants the fan to stop working once the
compact fireplace has cooled off.
POSITION "1" : MANUAL start-up of the fan at MINIMUM SPEED. In this position the fan
will not stop working even if there is no fire in the fireplace and the temperature of the
cast iron parts has fallen below 50 ºC.
- POSITION "2" : MANUAL start-up of the fan at FULL SPEED.
In this position the fan will not stop working even if there is no fire in the fireplace and the temperature
of the cast iron parts has fallen below 50 ºC.
This position is recommended when a quick transfer of heat from the fireplace to the room is required.
NEVER DISCONNECT THE COMPACT FIREPLACE FROM THE POWER SUPPLY
3. ELECTRICAL OUTLINE

Related product manuals