EasyManua.ls Logo

hergom C-16/80 - Esquema Electrico

hergom C-16/80
Print Icon
To Next Page IconTo Next Page
To Next Page IconTo Next Page
To Previous Page IconTo Previous Page
To Previous Page IconTo Previous Page
Loading...
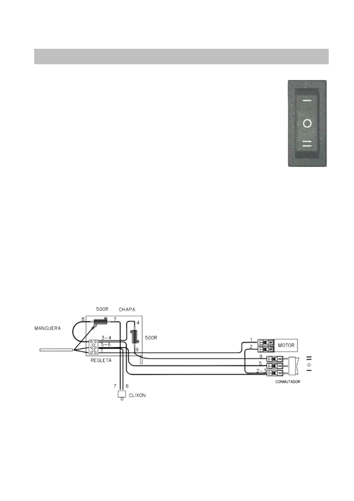
Posiciones del conmutador.
- POSICIÓN "0": La turbina arranca a VELOCIDAD SILENCIOSA (ECO) de forma
AUTOMÁTICA cuando el aparato tiene fuego y el hierro fundido alcanza la
temperatura de 50ºC (en la zona donde está situado el termostato).
Cuando se apaga la llama en el hogar y la temperatura del hierro fundido está por debajo
de los 50ºC la turbina se para.
¡SE RECOMIENDA! esta posición cuando el usuario quiera que se pare la turbina una vez
esté frío el compacto.
- POSICIÓN "1": La turbina arranca a VELOCIDAD MINIMA de forma MANUAL, en esta
posición la turbina no para aunque se haya apagado la llama del hogar y la temperatura
del hierro fundido esté por debajo de 50ºC.
- POSICIÓN "2": La turbina arranca a MÁXIMA VELOCIDAD de forma MANUAL.
En esta posición la turbina no para aunque se haya apagado la llama del hogar y la temperatura del
hierro fundido este por debajo de 50ºC.
Esta posición es recomendable cuando se necesita una rápida cesión de calor del hogar a la estancia.
NUNCA DESCONECTE EL COMPACTO DE LA FUENTE DE ALIMENTACIÓN
3. ESQUEMA ELECTRICO

Related product manuals