EasyManua.ls Logo

Hermann Supermaster 28 E - Flue Systems SUPERMASTER SE

Hermann Supermaster 28 E
48 pages
Print Icon
To Next Page IconTo Next Page
To Next Page IconTo Next Page
To Previous Page IconTo Previous Page
To Previous Page IconTo Previous Page
Loading...
19
Installation
for the technician
CSCA45CS 135
m
i
n
.
3
0
0
CA45
1
3
0
ø
8
0
ø
8
0
1
3
0
CSCA
759_1_R00
1
3
0
1
3
0
ø
8
0
ø
8
0
1
3
0
1
3
0
ø
8
0
ø
8
0
C
S
1
3
8
5
ø125
1
3
0
CA
45
ø
8
0
ø80
1
3
8
5
ø125
ø80
ø80
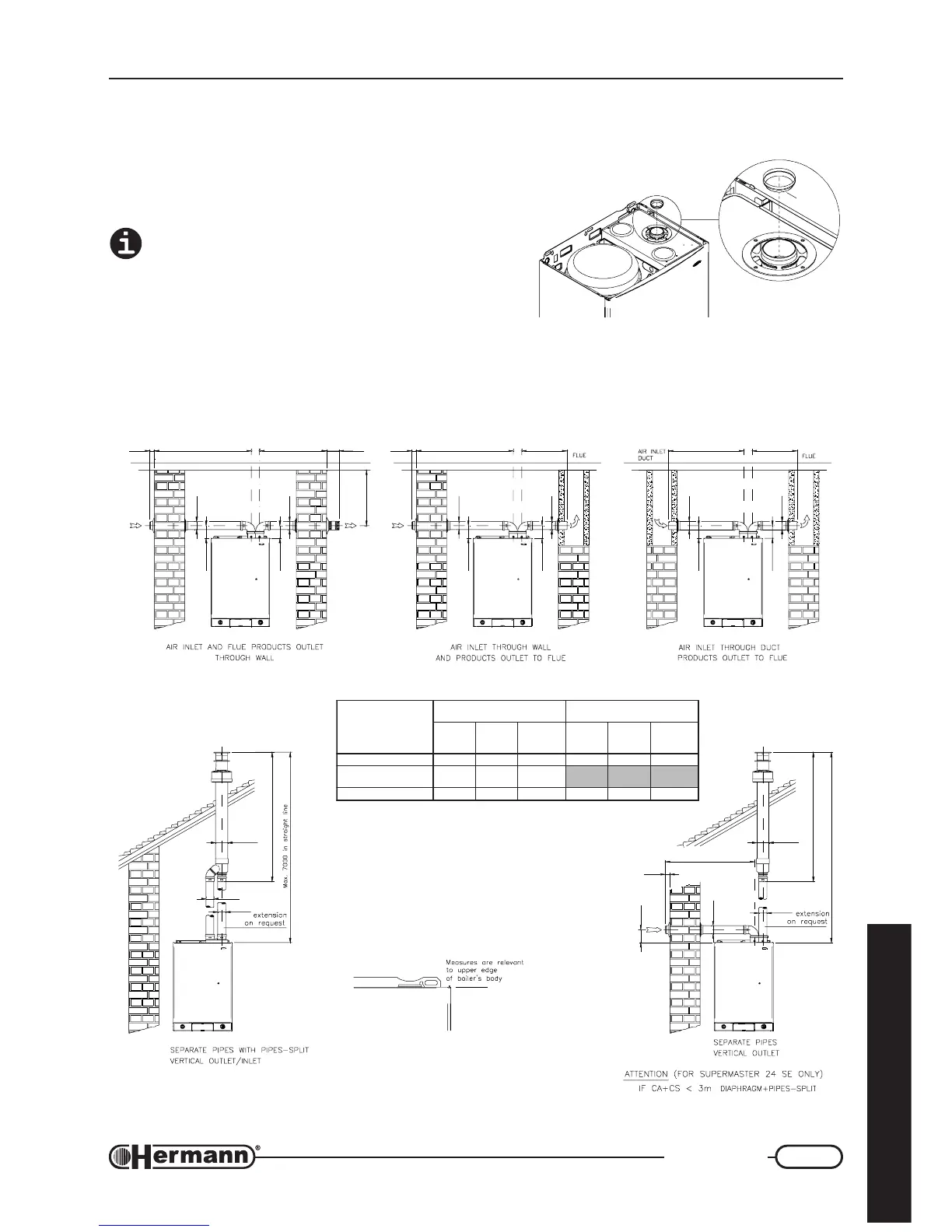
Flue systems
SUPERMASTER SE
AIR INLET AND PRODUCTS OUTLET THROUGH
SEPARATE PIPES
Attention: see table and, if required, install the
diaphragm supplied with the gas boiler, as
indicated in the figure besides (any additional 90°
bend = 0.5 linear meters, 45° bend = 0.25
meters).
ledoM
stcuddetarapeS
rettilpSsepiPhtiW
.noitcennoclaixaocno
SC+AC
xam÷nim
)m(
SC
xam
)m(
mgarhpaiD
otpu
)m(SC+AC
SC+AC
xam÷nim
)m(
SC
xam
)m(
mgarhpaiD
otpu
)m(SC+AC
ES42RETSAMREPUS03÷2028 41÷231ON
ES42RETSAMREPUS
nafyticapachgihhtiw
06÷1304ON
ES03RETSAMREPUS61÷201SYAWLA01÷27ON
7
5
8
_
R
0
0
Diaframma

Related product manuals