EasyManua.ls Logo

Heta INSPIRE 40 - Page 18

Heta INSPIRE 40
28 pages
Print Icon
To Next Page IconTo Next Page
To Next Page IconTo Next Page
To Previous Page IconTo Previous Page
To Previous Page IconTo Previous Page
Loading...
18
4
5
6
3
2
1
7
8
9
10
2
3
7
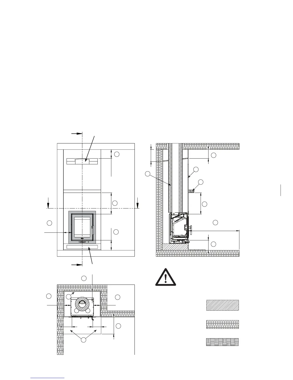
- Min. 550 cm
2
- Min. 330 cm
2
A:A
B:B
The dimensions are the
minimum dimensions,
unless otherwise stated.
12
11
11
The Building materials that are used in safety
test and shown in illustrations on this page, with
No. 8. has a thermal conductivity of max.
(= <0.36 W (m * K)
1. Min. 110 mm convection rear
2. Min. 120 mm convection in the sides
3. Min. 380 mm from the convection cabinet
to the lower edge of the shelf
4. Pipes must be insulated
5. Furniture safty distance min. 900 mm
6.
Distance to side wall to the stove front
150 mm
7. Min. 160 mm from top edge of convection
outlet to a combustible material
8. Not combustible 12,5 (=<0,36 W/(m*K)
9. Floor board: Min. 150 mm to combustible
flooring to the side of the stove door
10. Floor board: Min. 300 mm to combustible
flooring in front of stove
11. Min. 180 mm from front of the insert to
combustible floor
12. Shelf
150
380 160 180
AA
B
B
120
300
120
110
150 150
900
160 180
380
210
Not combustible material
Combustible material
Other combustible material
8

Other manuals for Heta INSPIRE 40

Related product manuals