EasyManua.ls Logo

Hitachi 32HDT50 - Connection Diagrams

Hitachi 32HDT50
132 pages
Print Icon
To Next Page IconTo Next Page
To Next Page IconTo Next Page
To Previous Page IconTo Previous Page
To Previous Page IconTo Previous Page
Loading...
PT3-E/G AVC3-U
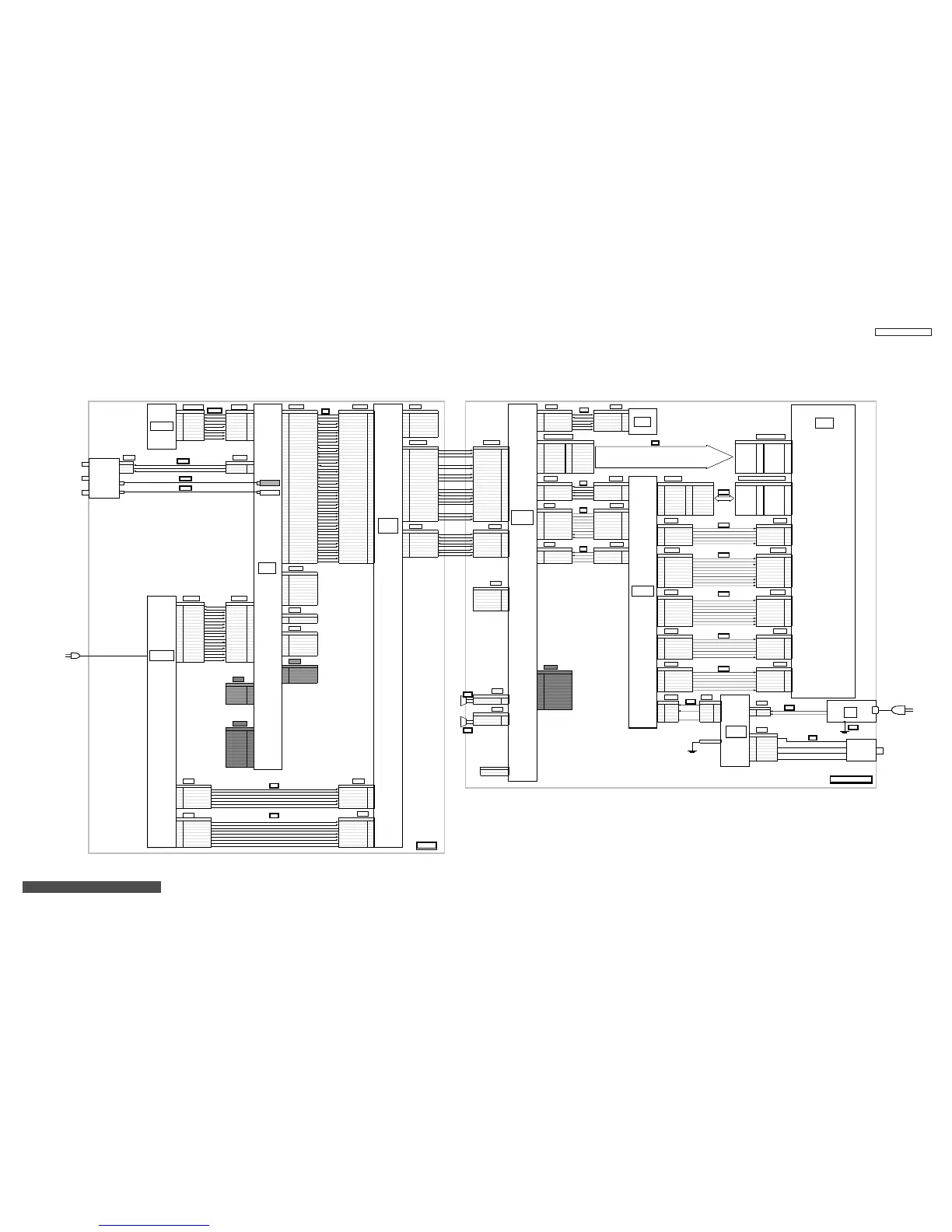
CONNECTION DIAGRAM
32HDT50/55
PSC PCS P50FP P001P
P501P PSC2 PSC2
1 POW LED
POW_LED
150GND GND 1
1 GND 1STB+5V STB+5V 1
2 POWER.SAVE POWER.SAVE 2 4 9 NC NC 2
2 TxD 2 REM REM 2
3 STB+5V STB+5V 3 48 GND GND 3
3 RxD 3 GND GND 3
4 GND GND 447DATA DATA 4
4RES 4 LED1 LED1 4
5 RM-IN RM-IN 5 46 CLK CLK 5
5 +5V 5 LED2 LED2 5
6 A+5V V+5V 6 45 GND GND 6
6 FEW 6 LED OFF LEDOFF 6
7
A/D KEY1
KEY1 7 44 FC-ENA FC-ENA 7
7 MD2
8
A/D KEY2
KEY2 8 43 OSD-CS OSD-CS 8
8 FCK
9 IR CAP IR CAP 942OSD-DATA OSD-DATA 9
41 OSD-CLK OSD-CLK 10
PDS CN1
40 GND GND 1 1
1 RXIN0- 2 GND(LVDS) GND(LVDS) 2 RX IN0- 1
39 NC(2H) NC(2H) 12
P301P J601 3 RXIN0+ 4 SCL0 SCL 4 RXIN0+ 3
38 NC(K-DET) NC(K-DET) 1 3
1TX2 - TX2 - 1 5 R XIN 1- 6 GND GND 6 RXIN1- 5
37 NC(2V) NC(2V) 14
2 TX2 + TX2 + 2 7 RXIN1+ 8 SDA0 SDA8RXIN1+ 7
36 NC(KMASK) NC(KMASK) 15
3 TX2 SHIELD TX2 SHIELD 3 9 RXIN2- 1 0 GND(LVDS) GND(LVDS) 1 0 RXIN2- 9 Logic
35 GND GND 1 6
4NCNC4 11 RXIN2+ 12 CPU-G0 CPUG0 12 RXIN2+ 1 1
PAN EAN 3 4 232C-PDP(TXD) 232C-PDP(TXD) 17
5NCNC5 13 RXCLKIN- 14 PDP-G0 PDPG0 14 R XCLKIN- 13
1 ANT 1 3 3 232C-PDP(RXD) 232C-PDP(RXD) 18
6 SCLH SCLH 6 1 5 RXCLKIN+ 16 IRQ IRQ16RXCLKIN+ 1 5
2 GND 2 3 2 GND GND 1 9
7 SDAH SDAH 7 1 7 RX I N3 - 18 PDWN PDWN 1 8 RXI N3- 1 7
3 FE+9V 3 31 AVDET AVDET 2 0
8NCNC8 19 RXIN3+ 20 GND(LVDS) GND(LVDS) 20 RXIN3+ 19
30 NC NC 2 1
9TX1 - TX1 - 9
29 Remo-PDP Remo-PDP 2 2
10 TX1 + TX1 + 10
28 GND GND 2 3
11 TX1 SHIELD TX1 SHIELD 1 1
27 NC(PMRST) NC(PMRST) 24
12 NC NC 12 PSU CN63 CN69 CN7
26 C.SW C.SW 2 5
13 NC NC 13 1STB+5V Vpr1(STB+5V) 1 1 NC 2 NC NC 2 NC 1
25 GND GND 2 6
14 AVDET AVDET 1 4 2 2 3 NC 4 NC NC 4 NC 3
24 MY MY 27
15 GND GND 15 3 Vpr2 3.3V Vpr2(STB+3.3V) 3 5 GND 6 Vsago VSAGO 6 GND 5
23 MCb MCb 2 8
16 HPDET HPDET 16 4 LED OFF LED-OFF 4 7 GND 8 Vcego VCEGO 8 GND 7
22 MCr MCr 29
17 TX0 - TX0 - 1 7 5 GND GND 5 9 GND 10 PFC go PFCGO 1 0 GND 9 Logic
21 GND GND 3 0
18 TX0 + TX0 + 18 11 GND 12 Vra Vra 12 GND 11
20 MH MH 3 1
19 TX0 SHIELD TX0 SHIELD 1 9 13 GND 1 4 V r s Vrs 14 GND 1 3
19 MV MV 32
20 NC NC 20 15 GND 16 Vlak Iak 16 GND 1 5
18 GND GND 3 3
21 NC NC 21 PPS CNPPS 1 7 GND 1 8 Vak Vak 18 GND 1 7
17 S-Y S-Y 34
22 TXC SHIELD TXC SHIELD 2 2 1 FAN LOCK SIG NC 1 1 9 GND 2 0 Vsk V sk 2 0 GND 1 9
16 SCb SCb 3 5
23 TXC + TXC + 2 32POWER1 NC 2
15 SCr SCr 3 6
24 TXC - TXC - 2 4 3 NC NC 3
14 GND GND 3 7
4 GND GND 4
13 SH SH 3 8
5NC NC 5 CN68 CN6
12 SV SV 39
6 GND GND 61Vpr2(STB+3.3V) Vpr2 1
11 GND GND 4 0
P302P J602 7 GND GND 7 2 NC NC 2
10 GND(OSD/TXTG)
NC(OSD/TXTG)
41
1 TXD0TXD01 812V +12V 8 3 GND GND 3 Logic
9 GND(OSD/TXTB)
NC(OSD/TXTB)
42
2 RXD0 RXD0 2 9 12 V +12V 9 4 GND GND 4
8 GND(OSD/TXTR)
NC(OSD/TXTR)
43
3 PARITY PARITY 3 5NC NC 5
7 NC(OSDBLK/Ys) NC(OSDBLK/Ys) 44
4 Remo-PDP Remo-PDP 4 6 Vcc(5.1V) Vcc 6
6 NC(HALFTONE/YM) NC(HALFTONE/YM) 45
5 Audio L Audio L 5
5 GND GND 4 6
6 Audio R Audio R 6 PPA CNPPA
4L L 47
7 PDDET PDDET 7 1 A.12V +13V 1
3 GND GND 4 8
8 AVDET2 AVDET2 8 2 A.12V +13V 2 CN64 CN23
2R R 49
3 A.GND GND 3 1 Va(60V) Va 1
1 GND GND 5 0
4 A.GND GND 4 2 NC NC 2
3 Vcc Vcc 3
4 GND GND 4
5 GND GND 5 Xsus
PFSH
6 GND GND 6
1 GND
7NC NC 7
2 RXD
8Vs(80V) Vs 8
3 BUSY
9Vs(80V) Vs 9
4 VPP
10 Vs(80V) Vs 10
5 VDD
PMW
6 SCLK
MD1 1
7 TXD
FEW/FWP 2
8 CNVSS
VIN 3 CN65 CN33
9 RESET
RESET 4 1 Vcc(5.1V) Vcc 1
PSP PSP 1 0 GND
TXD 5 2 GND GND 2
1 TV.POWER POWER1 1
RXD 6 3 GND GND 3
2NC POWER2 2
GND 7 4 GND GND 4
3 AC.CLK AC.CLK 3
5 GND GND 5 Ysus
4NC FAN.DET 4 PRST
6NC NC 6
5 STBY+5V STB+5V 5 1 KEY2
7Vs(80V) Vs 7
6 GND GND 62KEY1
8Vs(80V) Vs 8
7 +3.3V +3.3V 7
9Vs(80V) Vs 9
8 +3.3V +3.3V 8
9 GND GND 9
10 GND GND 10 PJIG
11 +5.5V +5.5V 1 1 1 SCL2
CN66 CN42
12 GND GND 12 2 SDA2
1 Va(60V) Va 1
13 +9.5V +9.5V 1 3 3 GND
2NC NC 2
14 GND GND 14 4 SCL1
3NC NC 3
AC120V
15 +5.5V +5.5V 1 5 5 SDA1
4 GND GND 4 AbusR
16 GND GND 1 6 6 JI G
5 GND GND 5
17 +9.5V +9.5V 1 7 7 STB+5V
6NC NC 6
18 GND GND 1 8
7 Vcc(5.1V) Vcc 7
19 FE+30V FE+30V 19
PCHK3
1
SUB SYNC-OUT
CN67 CN52
2
SUB MONITOR-OUT PDA1 1 Va(60V) Va 1
3 MAIN SYNC-OUT
1 ROUT 2NC NC 2
4
MAIN MONITOR-OUT 2RIN 3NC NC 3
5 GND
3 GND 4 GND GND 4 AbusL
PMS1
4 LOUT 5 GND GND 5
DM.RESET 1
5 LIN 6NC NC 6
DM.ENOUT 2
6 GND 7 Vcc(5.1V) Vcc 7
DM.SCK 3
7SDA
DM.RXD 4
PAS1 8 SCL
DM.TXD 5
L+ 1 9 GND
DM.ENIN 6
L- 210AUDRST CN61 PPU1 AC120V
11 AUDDET 1 AC(L) AC 1
12 +12V 22PPU2
3 AC(N) AC 3 1 AC
PAS2 442AC
1 55
R+ 2 6FG FG 6
R- 3
PMS2
DM.YH 1
GND 2
PSW
DM.PB 3
1AC
DM.PR 4
EGND 2
GND 5
3
DM.L 6
4AC
DM.R 7
5
DM.Y 8
6AC
DM.C 9
7
GND 1 0
8AC
STB+5V 1 1
SUB WOOFER OUT
DM+9VOUT 1 2
J401
SUB
GND
PFP1 P002P
1 F+5.5V F+5.5V 1
2 F+5.5V F+5.5V 2
3 GND GND 3
4 GND GND 4
5 FSTBY+5V FSTBY+5V 5
6 FSTBY+5V FSTBY+5V 6
7 GND GND 7
PFP2 P003P
1 D+1.8V D+1.8V 1
2 D+1.8V D+1.8V 2
3 GND GND 3
4 GND GND 4
5 DM+3.3V DM+3.3V 5
6 DM+3.3V DM+3.3V 6
7 DM+3.3V DM+3.3V 7
8 GND GND 8
9 GND GND 9
POWER
PWB
EH-19P
EH-19P
PH-12P
CONTROL
PWB
FPC-50P
FPC-50P
ESF
AV
PWB
M. TUNER
S. TUNER
EH.B-3P
EAN
EFEM
EFES
EH-3P
PH-6P
ZH-9P
ZH-9P
EFP2
ZH-7P
ZH-7P
EFP1
PH-10P
EH-7P
EH-2P
FC4
UNIT
DVI-D 24P
DIN-8P
PH-8P
UNX ANT SW
MEMORY INITIALIZE
DIGITAL MODULE
JIG
EH-5P
AVC50
PH-9P
PH-9P
ESC
DIGITAL MODULE
S/W WRITING
EAS1
EAS2
EH-3P
EH-2P
SP R
SP L
SIGNAL
/AUDIO
PWB
DVI-D 24P
EH-7P
DIN-8P
LED PWB
FILTER
PWB
PDP
MODULE
AC
INLET
EDS
EPU1
MAIN
POWER
SW
E902
POWER
UNIT
ESC2
PH-6P
PH-6P
DF13-20DS-1.25C
DF13-20DP-1.25V
ESU
XHP-5P
B5B-XH
EPS
EH-9P
B9B-EH
EPA
EH-4P
B4B-EH
ECN69
ECN68
B6B-PH
B6B-PH
B10P-VH
B10P-VH
ECN66
B7B-PH
B7B-PH
ECN67
B7B-PH
B7B-PH
B9P-VH
B6P-VH
VH-6P
VT-2P
EPU2
ESW
VH-8P
32HDT50M/55M
ZH-12P
20FMN-BT
ECN64
ECN65
B9PS-VH
00 6200 520 330 000
97
BACK TO TABLE OF CONTENTS

Related product manuals