EasyManua.ls Logo

Hofmann Megaplan megamount 601 - SCHEMI ELETTRICI E PNEUMATICI Pag; Electr. and Pneum. Diagrams

Hofmann Megaplan megamount 601
56 pages
Print Icon
To Next Page IconTo Next Page
To Next Page IconTo Next Page
To Previous Page IconTo Previous Page
To Previous Page IconTo Previous Page
Loading...
50
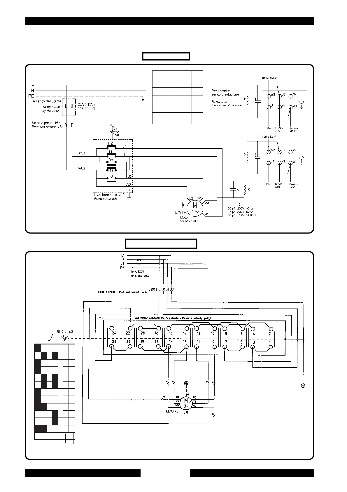
14. SCHEMI ELETTRICI E PNEUMATICI - ELECTR. AND PNEUM. DIAGRAMS
SCHEMAS ELECTRIQUE ET PNEUMATIQUE SCHALT- UND DRUCKLUFT PLÄNE
21-11
XX
X
XXXX
X
XX
8-7
XX
X
XX
6-5
XX
X
XX
4-3
XX
X
XX
2-1
XX
X
XX
ittatnoCittatnoC
ittatnoC
ittatnoCittatnoC
stcatnoC
LL
L
LL00
0
00RR
R
RR
230V - 1PH
400V - 3PH - 2 SPEED
66
6
66
3242
1222
55
5
55
9102
7181
44
4
44
5161
3141
33
3
33
1121
901
22
2
22
78
56
11
1
11
34
12
2L1L0 1R
Elements
Contacts

Related product manuals