EasyManua.ls Logo

HomeSeer HS-FLS100+ - Installation and Setup; Important Safety Precautions; Taking Down Existing Floodlight; Removing Old Motion Sensor

Default Icon
8 pages
Print Icon
To Next Page IconTo Next Page
To Next Page IconTo Next Page
To Previous Page IconTo Previous Page
To Previous Page IconTo Previous Page
Loading...
IMPORTANT
Installation must be performed by skilled technicians who are informed
about the standards and technical requirements of the appliance and its
proper installation.
Check your local codes as they apply to your situation. If the house wiring is of
aluminum, consult with an electrician about proper wiring methods.
Before proceeding with the installation, TURN OFF THE POWER TO THE
LIGHTING CIRCUIT AT THE CIRCUIT BREAKER OR FUSE BOX TO AVOID
ELECTRICAL SHOCK.
SAFETY PRECAUTION
DO NOT install when it is raining.
Isolate the power supply before installation.
Ensure that local Wiring and Building regulations are complied with.
The unit is supplied with a pre-wired supply cable this must be used and must
not be removed.
Total lighting load to HS-FLS100+ not exceed:
- 300W incandescent @ AC120V
- 100W LED @ AC120V with 0.8 pF Driver
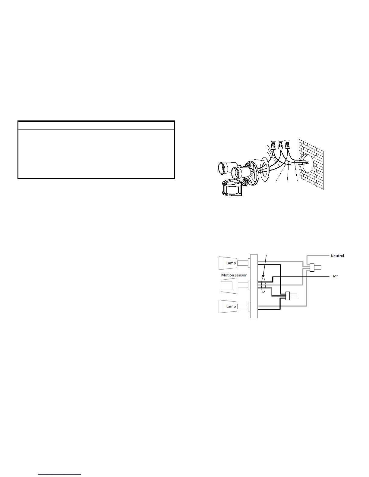
Installation & Wiring instructions
Note: As with any outdoor installation work it is always recommended to start early
during the day.
WARNING: TURN OFF POWER BY REMOVING POWER FUSE OR TURNING
OFF CIRCUIT BREAKER BEFORE INSTALLATION.
Taking down the existing floodlight
1. With mains supply turned off, if possible remove the lamps from the bulb
holders of the existing floodlight to avoid any damage during the installation.
2. Carefully detach the floodlight from the wall by removing its mounting screws.
Keep all parts for reuse later, including any rubber rings. Take note the
direction of the rubber gasket as it needs to be reassembled later in the same
way.
3. Disconnect the mains wire from the floodlight by untwisting the wire nuts.
4. When done, place the floodlight on a table to prepare for wiring the
HS-FLS100+.
Removing old motion sensor
(Skip this section if the existing floodlight has no motion sensor)
5. Locate the wires coming from the old motion sensor, usually colored black,
white and red.
6. Disconnect the wires of the motion sensor by cutting it if necessary.
7. Remove the old motion sensor from the mounting base by twisting its
threaded arm counter clockwise.
Yellow/Green
Black
White
Earth
GASKET
Live
Neutral
Cut here
RED
BLACK
WHITE

Related product manuals