EasyManua.ls Logo

Honeywell 7800 SERIES

Honeywell 7800 SERIES
16 pages
To Next Page IconTo Next Page
To Next Page IconTo Next Page
To Previous Page IconTo Previous Page
To Previous Page IconTo Previous Page
Loading...
66-10853
8
RM7800E,G,L,M; RM7840E,G,L,M 7800 SERIES RELAY MODULES
บรษัท เอดีดี เฟอรเนส จํากัด
ADD FURNACE CO.,LTD.
44 ซอยบรมราชชนน 70 ถนนบรมราชชนน แขวงศาลาธรรมสพน์ เขตทวีวฒนา กรงเทพฯ 10170
โทร: 02-888-3472 โทร: ออกแบบ:08-08-170-170 แฟกซ์: 02-888-3258
https://www.add-furnace.com E-mail: sales@add-furnace.com
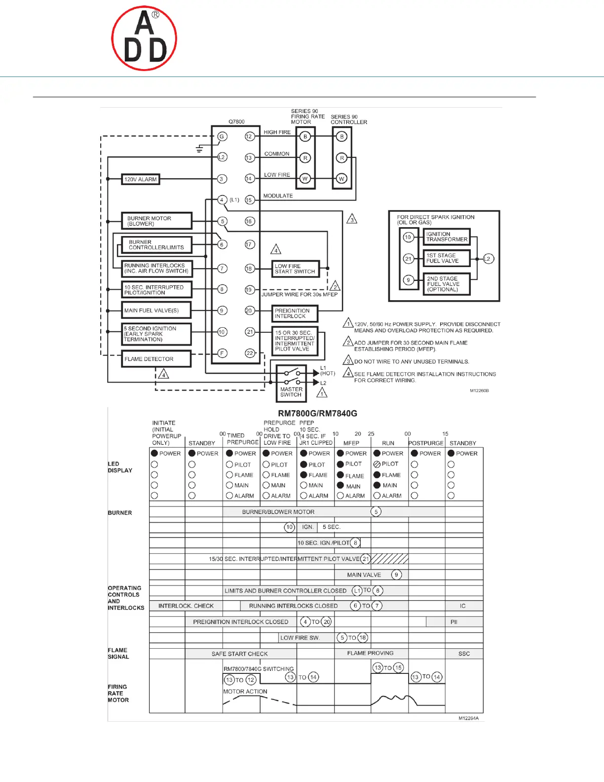
Fig. 3. Wiring subbase and sequence for RM7800GIRM7840G.

Other manuals for Honeywell 7800 SERIES

Related product manuals