EasyManua.ls Logo

Honeywell PC8900A - Page 10

Honeywell PC8900A
44 pages
Print Icon
To Next Page IconTo Next Page
To Next Page IconTo Next Page
To Previous Page IconTo Previous Page
To Previous Page IconTo Previous Page
Loading...
68-0173310
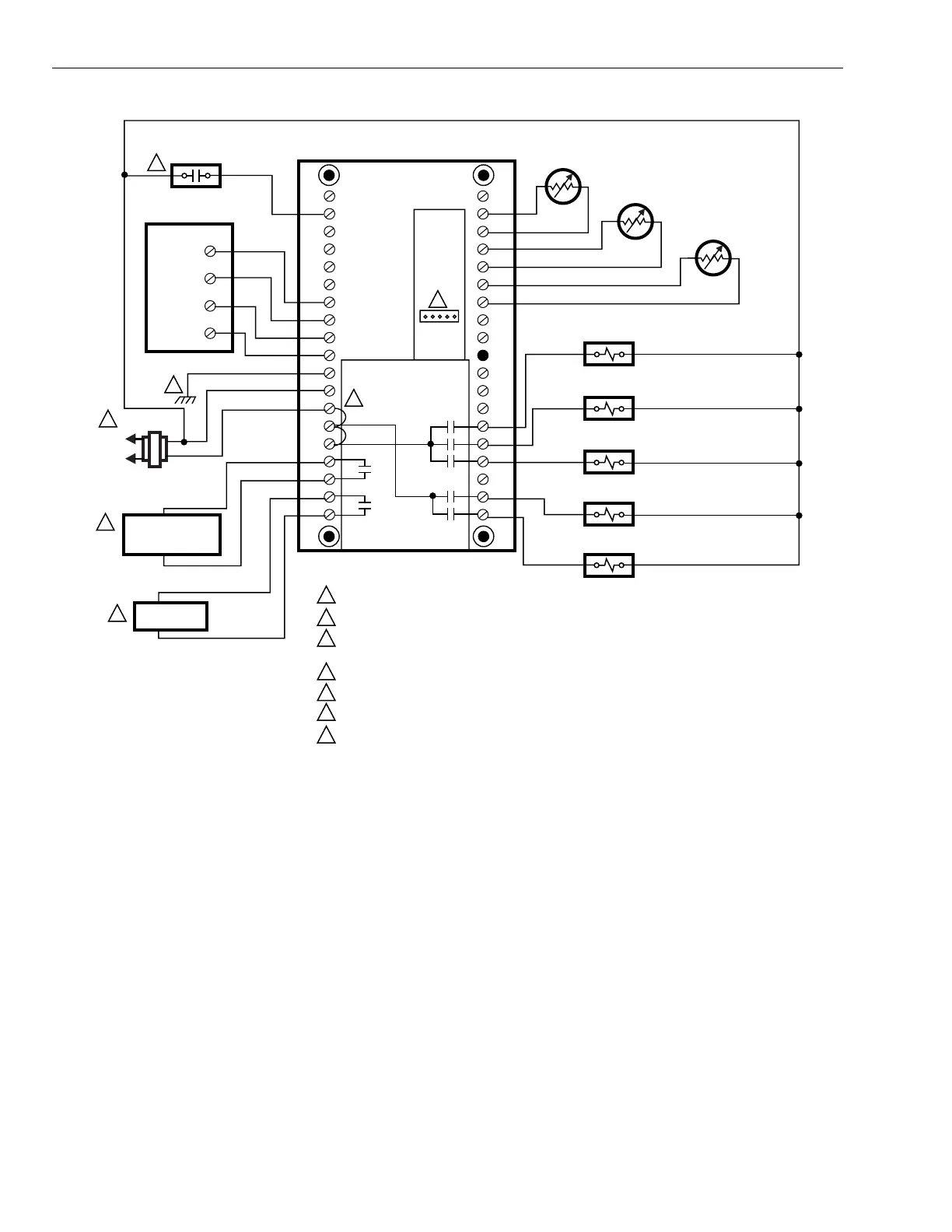
Fig. 12. Hookup diagram for 1-stage or 2-stage heating and cooling in conventional system with single transformer.
L1
(HOT)
L2
1
1
2
3
4
5
5
3
POWER SUPPLY. PROVIDE DISCONNECT MEANS AND OVERLOAD PROTECTION AS REQUIRED.
JUMPER R TO RH TO RC FOR SINGLE TRANSFORMER APPLICATIONS.
DURING INSTALLER SETUP, CONFIGURE PC8900 FOR HUMIDITY CONTROL IN HEATING MODE
(HUMIDIFIER) OR COOLING MODE (DEHUMIDIFIER).
W8900 ALLOWS CONNECTION OF A CO MONITOR WITH UNCOMMITTED CONTACTS.
SEE VENTILATION INSTRUCTIONS FOR WIRING.
GROUNDING THE GND TERMINAL IS NOT RECOMMENDED.
CONNECTION FOR CM8900A REMOTE COMMUNICATIONS MODULE.
STAGE 1
HEAT RELAY
STAGE 2
HEAT RELAY
STAGE 1
COOL RELAY
STAGE 2
COOL RELAY
FAN RELAY
PC8900
1
2
3
4
CO
2
MONITOR
M4478D
S1
S
T1
T
OUT
OUT
LED
G
Y2
Y1
W1
W2
1
2
3
4
GND
C
R
RH
RC
HUM
HUM
VNT
VNT
W8900A,C
2
4
C7189A REMOTE AIR
TEMPERATURE SENSOR
C7100 DISCHARGE AIR
TEMPERATURE SENSOR
C7089A OUTDOOR AIR
TEMPERATURE SENSOR
HUMIDIFIER
OR DEHUMIDIFIER
EQUIPMENT
VENTILATION
EQUIPMENT
SYSTEM
TRANSFORMER
CO
2
2
7
7
6
6

Other manuals for Honeywell PC8900A

Related product manuals