EasyManua.ls Logo

Honeywell T775 Series 2000 - Resetting Zone Air Temp Based on Outside Air Temp (2 stage cooling)

Honeywell T775 Series 2000
56 pages
To Next Page IconTo Next Page
To Next Page IconTo Next Page
To Previous Page IconTo Previous Page
To Previous Page IconTo Previous Page
Loading...
T775 SERIES 2000 ELECTRONIC STAND-ALONE CONTROLLERS
63-7147—05 28
Resetting Zone Air Temp Based on
Outside Air Temp (2 stage cooling)
Application Description
In this example, the T775L provides two stage DX cooling
based on zone temperature. The T775L calculates the zone
air temperature setpoint based on the actual outside air
temperature using a reset curve.
Sensor Description
This device application requires two sensors.
Sensor A is sensing zone air temperature.
Sensor B is sensing outside air temperature.
Operation
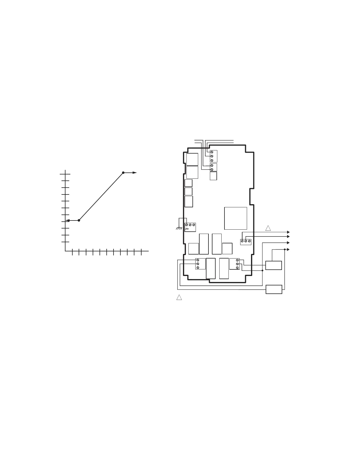
When the outdoor air temperature reaches 90 ° F the desired
zone air temp is 75 ° F, Likewise when the outside air temp
drops to 50 ° F the zone temp needs to be 68 ° F.
Fig. 34. Zone air reset curve
Programming Example
Program in Setup:
Press and hold the MENU button for 5 seconds to enter Setup
mode. Select the Outputs menu, and then select:
# RELAYS = 2
# LOOPS = 1
LOOP 1
# RELAYS = 2
LOOP 1 RESET = YES-OTHER
LOOP 1 Program for: (Refer to the reset curve in Figure 34)
- Setpoint Max A1 (Zone Max) = 75° F (24° C)
- Reset B1 (Outside Min) = 50° F (10° C)
- Setpoint Min A2 (Zone Min) = 68° F (20° C)
- Reset B2 (Outside Max) = 90° F (32° C)
- Differential = 20° F (-7° C)
- Cool.
Fig. 35. T775 wiring — 2 stage cooling
50 55 60 65 70 75 80 85 90
M31190
65
68
70
75
SP MIN A2
SENSOR A
ZONE AIR TEMP
SP MAX A1
RESET B1
(RETURN MIN)
SENSOR B
OUTDOOR AIR TEMP
RESET B1
(RETURN MIN)
C
NO
NC
C
NO
NC
COM
LOAD 2
LOAD 1
NO
COM
NO
COM
120V
M24287A
1
1
FOR 240 VAC LOAD, CONNECT TO 240 TERMINAL.
C
+
SENSOR A
SENSOR B
T
T
T
T
120
COM
240
POWER SUPPLY
L1 (HOT)
L2

Table of Contents

Related product manuals