EasyManua.ls Logo

Hotpoint HTV10 - Mounting Height and Wall Vent Kit; Cabinet and Wall Fixing Instructions

Hotpoint HTV10
12 pages
Print Icon
To Next Page IconTo Next Page
To Next Page IconTo Next Page
To Previous Page IconTo Previous Page
To Previous Page IconTo Previous Page
Loading...
Installing your Cooker Hood
7
Wall Vent Kit:
For connecting the hood either directly
through a wall or in conjunction with a duct-
ing pipe,we recommend the use of a Wall
Vent Kit. A 3m extension pipe is also available.
Both of these are 100mm diameter and may
be obtained from your nearest retailer or the
Genuine Parts and Accessories Mail Order
Hotline (see back cover) and must be used
where there is a cavity wall.
MOUNTING
Mounting Height:
Your Cooker Hood is suitable for wall
mounting or fixing to the underside of a wall
cupboard. In either case the underneath of
the hood should be 65cm above an electric
hob,
75cm above a gas hob, 40-45cm above a high
level grill/top oven.
For the best results, the hood should be
mounted as near as possible to the minimum
recommended height.
WARNING: The fan motor of this appliance
incorporates a thermal cut-out device
which will operate if the hood is installed
below the minimum recommended heights
listed above, or if the motor becomes over-
heated. If the cut-out device is activated,
switch off the fan motor and allow the
hood to cool.
The cut-out device will reset itself when the
fan motor has cooled significantly.
NOTE: This hood has been designed and
approved for installation over an electric
hob with a maximum input of 7kW or a gas
hob with a maximum input of 10kW when
fitted in accordance with the heights
recommended above.
A template is enclosed for both wall and
under-cupboard fixing.
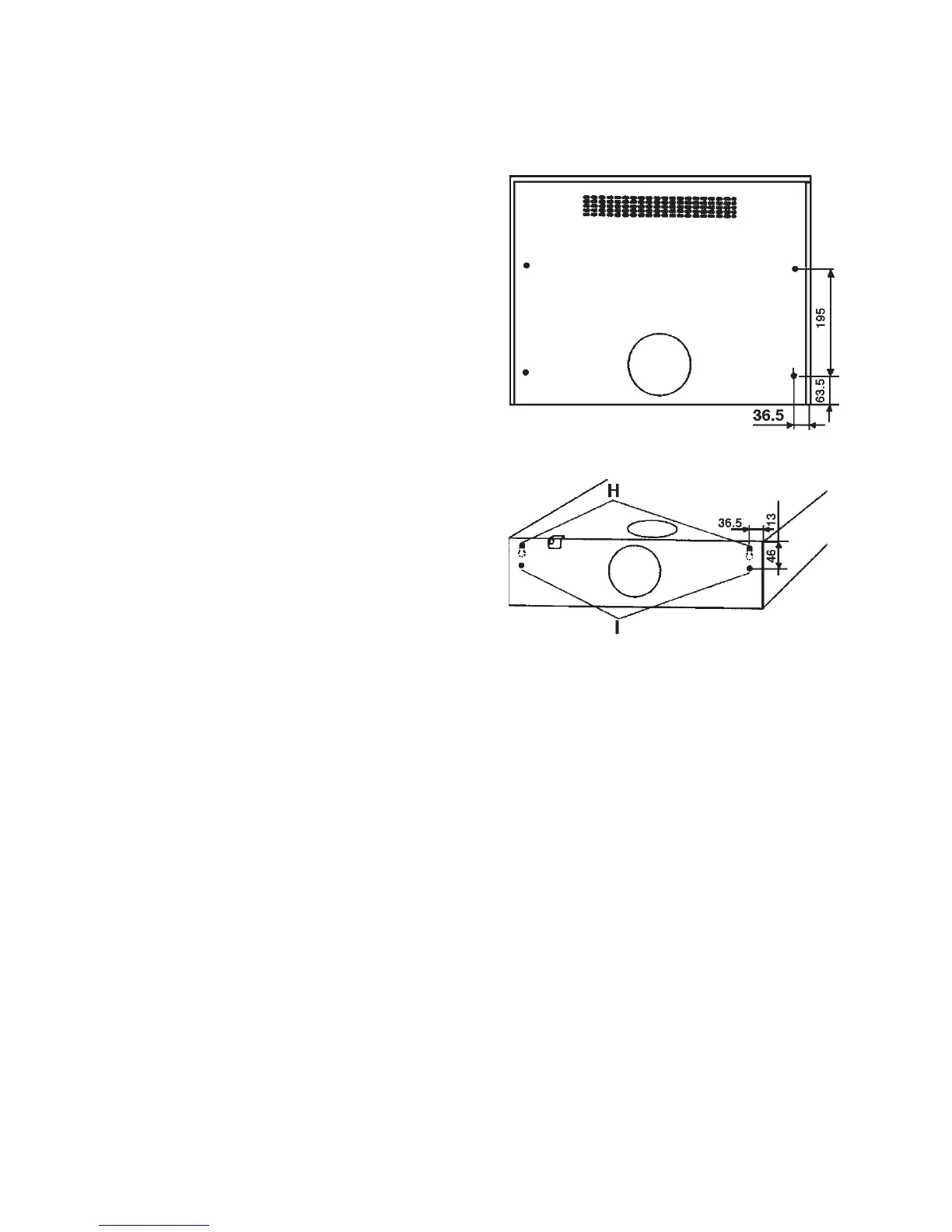
Fixing to the cabinet:
Ensure that the cabinet is securely fixed to the
wall, use 4 screws supplied and proceed as
follows:
Make holes at the bottom of the cabinet using
the template supplied. Fit the four 4.2 x
35mm screws supplied, in the holes, from
inside the cabinet (Fig.7).
Fixing to the wall:
Fit the template to the wall.
Make four 8mm diameter holes in the wall,
(2 on Fig.8 H and 1 on either of the points
Fig.8 I).
Fit four 8mm wall plugs
Fit two 5mm diameter x 45mm long screws
on H.Do not tighten completely.
Now hang the hood (holes H), tighten the two
screws and fit the screws in hole I from inside
the hood.
Fig.8
Fig.7

Related product manuals