EasyManua.ls Logo

HP 3455A - Page 169

HP 3455A
249 pages
Print Icon
To Next Page IconTo Next Page
To Next Page IconTo Next Page
To Previous Page IconTo Previous Page
To Previous Page IconTo Previous Page
Loading...
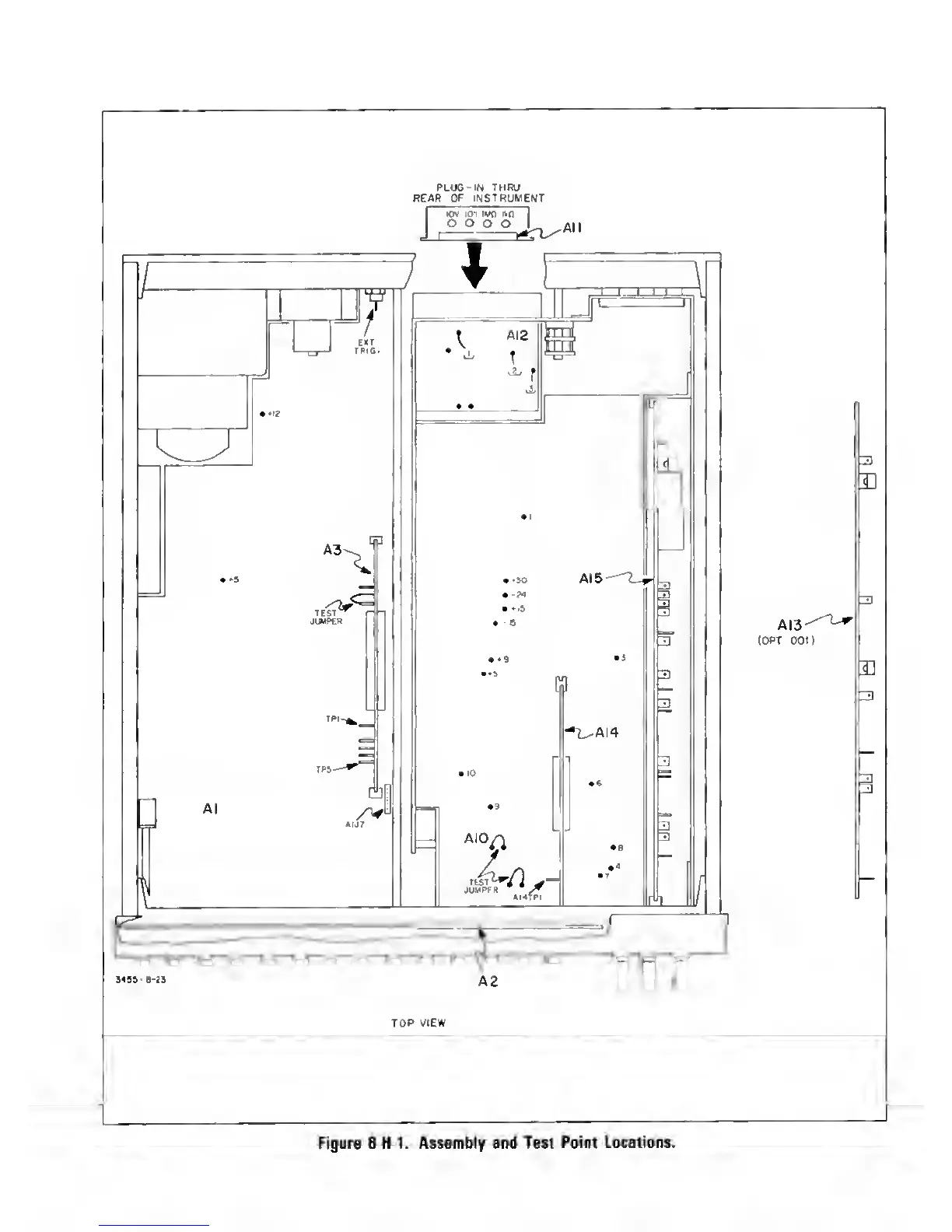
Figure 8-H-1. Assembly and Test
Point Locations.