EasyManua.ls Logo

HP 3490A - Page 224

HP 3490A
298 pages
Print Icon
To Next Page IconTo Next Page
To Next Page IconTo Next Page
To Previous Page IconTo Previous Page
To Previous Page IconTo Previous Page
Loading...
6
-6V
FROM
CR4
I
R444
<
200K
i
6
+tzv
FROM
cR2
2a
_ -
-J
DISPLÄY
NOTE
2 WV
TO P2(5)
NC
OHMS REF
SELECT
L
(LOMR)
ro
R4t4
3
aND
J3(8)
13
XI ATTEN
REED
L
(LIR)
ro
R40l
XO.OI
ATTEN
REEO
L
(LOIR)
fo
R4l2
XI ATTEN
L
(LIA)
TO R409
XO.OI ATTEN
L
(LOIA)
TO
R403
LEAKAGE
CONTROL
L
(LLEC)
ro
R406
OVERLOAD
PROTECTION
H
(HOVP)
T0
R50l
+REF
SELECT
L
(LPRF)
ro
R420
-REF
SELECT
L
(LMRF)
TO R423
AC
INPUT
ENAELE
L
(LACI)
TO J2il4)
AC
CONV
OUTPUT
SWITCH
L
(LACO)
TO
R4t7
INPUT
SHORT
L
(LINS)
TO R426
(
r_.lc
)
R445
tooK
POLARITY
a J8(J
)
t5
[--soue.e,."oloieftil-l
:(---'----).
f
-sarrPLE^1oLDörlöil-l
rl
: (
- -----
--
)z
NoTE 2 WT
[-soupr-Ezro-r-oirfr
'-l
r(--
--)r
XIO
GAIN
L
(LIOG)
TO
R438
XIOO
GAIN L
(LHNG)
TO R44l
XI GAIN
L
TO R435
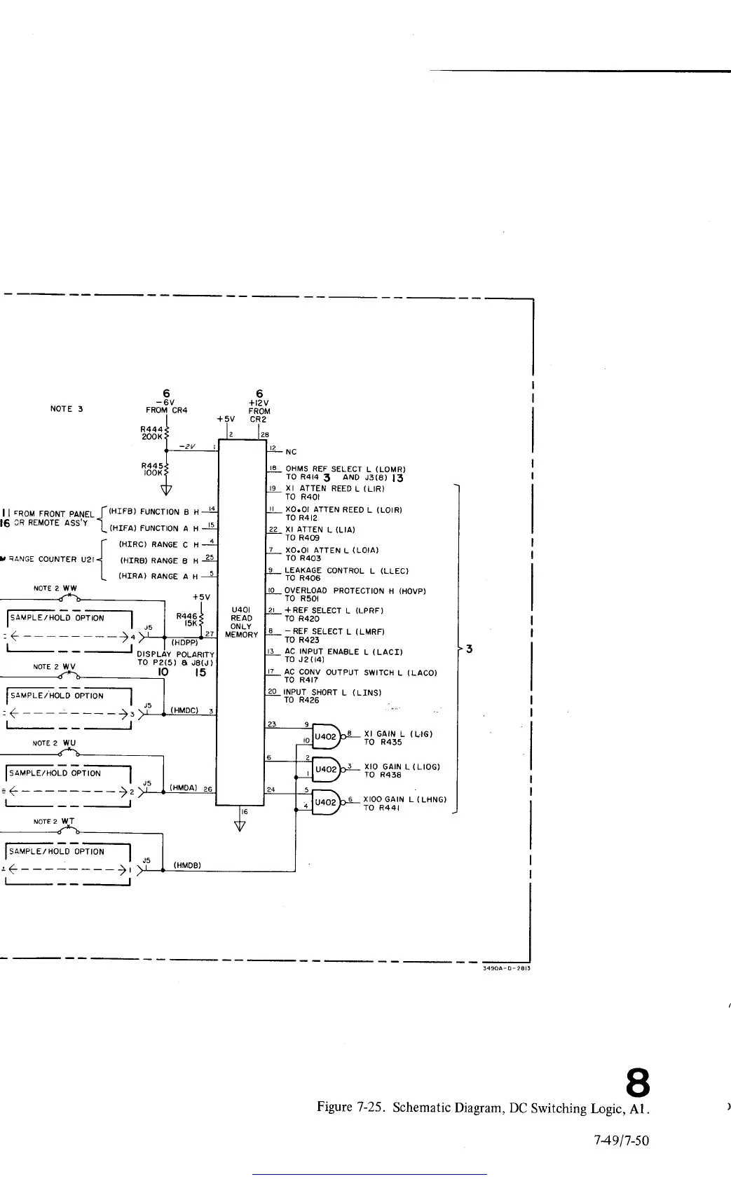
Figure
7-25.
Schematic
Diagram,
DC
Switching
Logic,
I
A1.
)wer
Supplies,
A l,
(
t
I
I
.Rou
raotr
ro*aa
[-{Hrra)
FuNcrtoN
B H
16
cR REMoTE oss'Y
f
tnrmt
FuNcroN
A H
f
(HrRc)
RANGE
c
H
I
y
?aNG5
COUNTER
U2tl
(HIRB)
RANGE
I
H
I
L
(HIRA)
RANGE A
H
NOT€
2 WW
fs^-rLErHoLD;pi6il-l
llur
u40l
READ
ONLY
MEMORY
74917-50
7-s1l'1
Get other manuals https://www.bkmanuals.com

Table of Contents