EasyManua.ls Logo

HP 3490A - Page 288

HP 3490A
298 pages
Print Icon
To Next Page IconTo Next Page
To Next Page IconTo Next Page
To Previous Page IconTo Previous Page
To Previous Page IconTo Previous Page
Loading...
08-Ll6L-L
'I'V
z
reqlot{
pr?n8lno
'rue€e1q
crleruoqcs
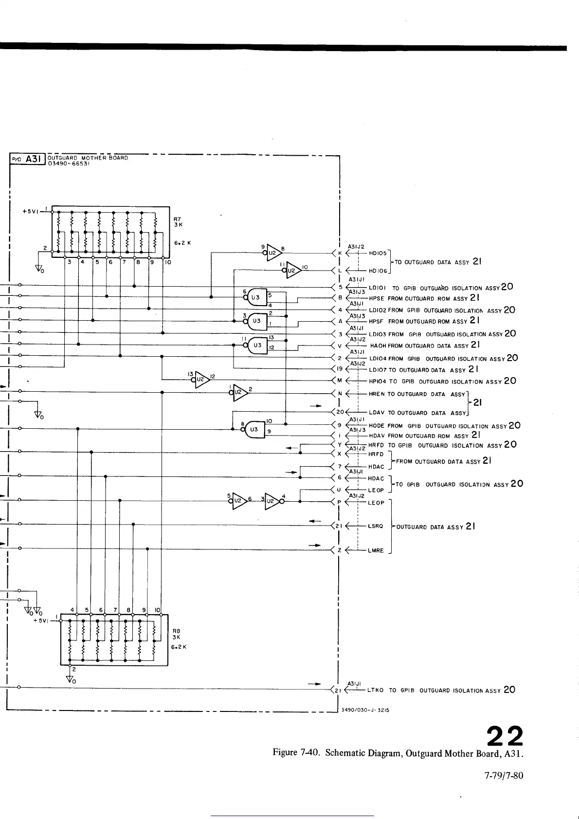
'671
arn8rg
'prBog
z
l'
l'
srze-r-oeozosre
f
OZ
^ssv
Nou.vlost
0uvn91no stdg
or
Ortr
ffi
oz^ssv
No'v"losr
ouvnerno
.,.0
o.,.{
:ott--
n
l_
cvon-j)
e
r
,oo,
''''to)
a
lZ
^ssv
vtv0
ouvncrno
norr{
orrrf
,
OZ
^ssv
Norrv'rosr
ouvnerno erac
or
orur
ztisv>
^
lZ
lssv wOU
ouvn9rno
nouJ
AvoH-+.J I
OZ^ssv
Nou.vrosr
ouvngrno
srdg
y{our
rooHI--}
e
f^ssv
vLvo ouvngrno
or nvor_Joz
E4
i
I
lrssv
vrvo
ouvngtno 01 N3uH-1)
N
OZ
^ssv
Nolfvlosl ouvn9].no
stdg or
rotdH-+J
n
I Z
^ssv vrvo
ouvnerno or r.oror;jt'
.,
oz
^ssv
Norrv"rost
ouvn9rno
stdg
WouJ roto'l
--r_)
z
lZ
^ssv
vtvo OuvngJ'no
y{OUlHOVH
:-l-
)
A
oz
^ssv
Norw"losr
ouvngrno srdg ^ou*o,o-,
zfp!
n
I
Z
^ssv $rou ouvnelno
wou.l JsdH
---J
v
OZ
^ssv
Notrviost
ouvn9lno
sldg l^loul zoto"l
-_-=)
t
lZ
lssv
l,iou o8vn9lno
wosj 3sdH--r-t
I
OZ^ssv
Norrv"losr oqvnelno srde or
rorol:-15
n
Inlev
I
IsoroH
-r-)
r
lz
^ssv
vrvo
ouvncrno
orl
i
.
I
LsoroH
_€
v
,42.9
8U
rss99
-06t€o
08vo8
u38ron
08vn9lno
Get other manuals https://www.bkmanuals.com

Table of Contents

Related product manuals