EasyManua.ls Logo

HP M750 series - Page 41

HP M750 series
678 pages
Print Icon
To Next Page IconTo Next Page
To Next Page IconTo Next Page
To Previous Page IconTo Previous Page
To Previous Page IconTo Previous Page
Loading...
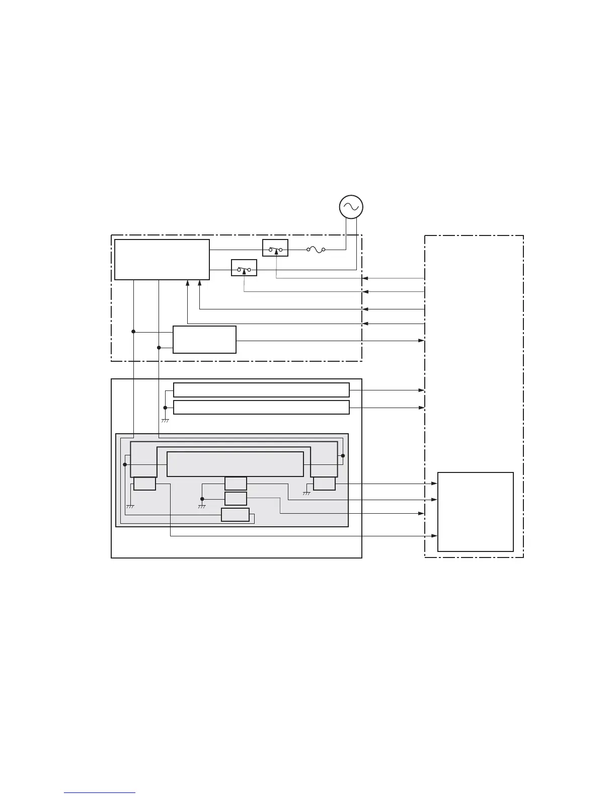
Fuser temperature control
The fuser temperature control maintains the fuser heater at its targeted temperature.
The fuser main heater and sub heater control the temperature of the fuser sleeve.
The DC controller monitors the main thermistor and the sleeve thermistor. The DC controller controls the
FUSER MAIN HEATER CONTROL (FSRD1) and the FUSER SUB-HEATER CONTROL (FSRD2) signals according to
the detected temperature. The fuser-heater control circuit controls the fuser heater depending on the signal
so that the heater remains at the targeted temperature.
Figure 1-7 Fuser-heater control circuit
Noise filter
DC controller
Fuser presence circuit
FU1
TH1
TH2
TH3 TH4
Fuser sleeve
Fuser heater
safety circuit
RLD1
RLD2
FSRD1
FSRD2
ZEROX
FUSEROPEN
FUHL
THERM1
THERM2
THERM4
THERM3
FU102
Improper fuser installation prevention circuit
AC input
H1
H2
RL102
RL103
Low-voltage power supply
Fuser heater
control circuit
Zerocross
circuit
Fuser
ENWW Engine-control system 15

Related product manuals