EasyManua.ls Logo

HP PROLIANT DL320 G6 - BBWC Battery Pack or FBWC Capacitor Pack Cabling to an Optional Controller

HP PROLIANT DL320 G6
89 pages
To Next Page IconTo Next Page
To Next Page IconTo Next Page
To Previous Page IconTo Previous Page
To Previous Page IconTo Previous Page
Loading...
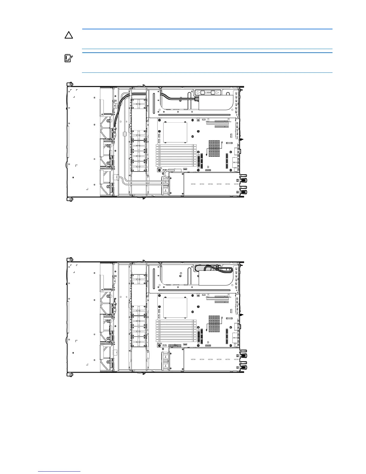
Cabling 81
CAUTION: When routing cables, always be sure that the cables are not in a position where
they can be pinched or air flow can be blocked.
IMPORTANT: Route the cables without blocking the airflow or other installed components.
Use the cable clips installed in the chassis to manage cable routing.
BBWC battery pack or FBWC capacitor pack
cabling to an optional controller

Related product manuals