EasyManua.ls Logo

HPE D3710

HPE D3710
43 pages
To Next Page IconTo Next Page
To Next Page IconTo Next Page
To Previous Page IconTo Previous Page
To Previous Page IconTo Previous Page
Loading...
1
2
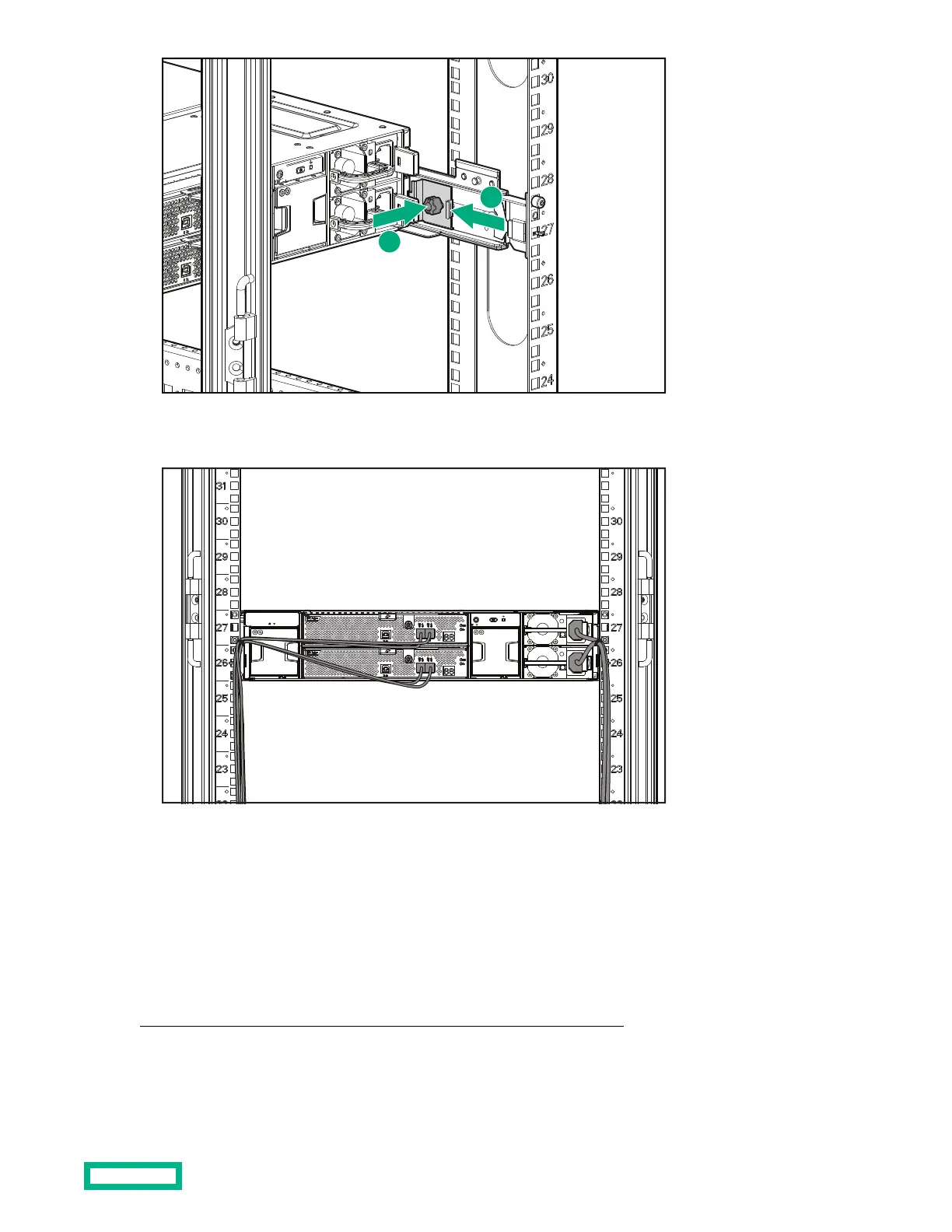
9. When cabling the device, use holes provided in the rear rack rails, install tie wraps, and route external cables as
required.
1
2
PS 1
PS 2
2
1
2
1
Installing disk drives in the enclosure
Disk drive options
Depending on the enclosure model, 12 or 25 disk drives can be installed in the enclosure. A variety of disk drive models
are supported for use, including dual-ported and single-ported models. For more information about supported disk drives,
see the QuickSpecs on the Hewlett Packard Enterprise website:
https://h20195.www2.hpe.com/v2/getdocument.aspx?docname=c04227611
Installing
14

Table of Contents

Other manuals for HPE D3710

Related product manuals