EasyManua.ls Logo

HTP EFT-155 - Page 39

Default Icon
91 pages
Print Icon
To Next Page IconTo Next Page
To Next Page IconTo Next Page
To Previous Page IconTo Previous Page
To Previous Page IconTo Previous Page
Loading...
39
LP-387 REV. 12.15.14
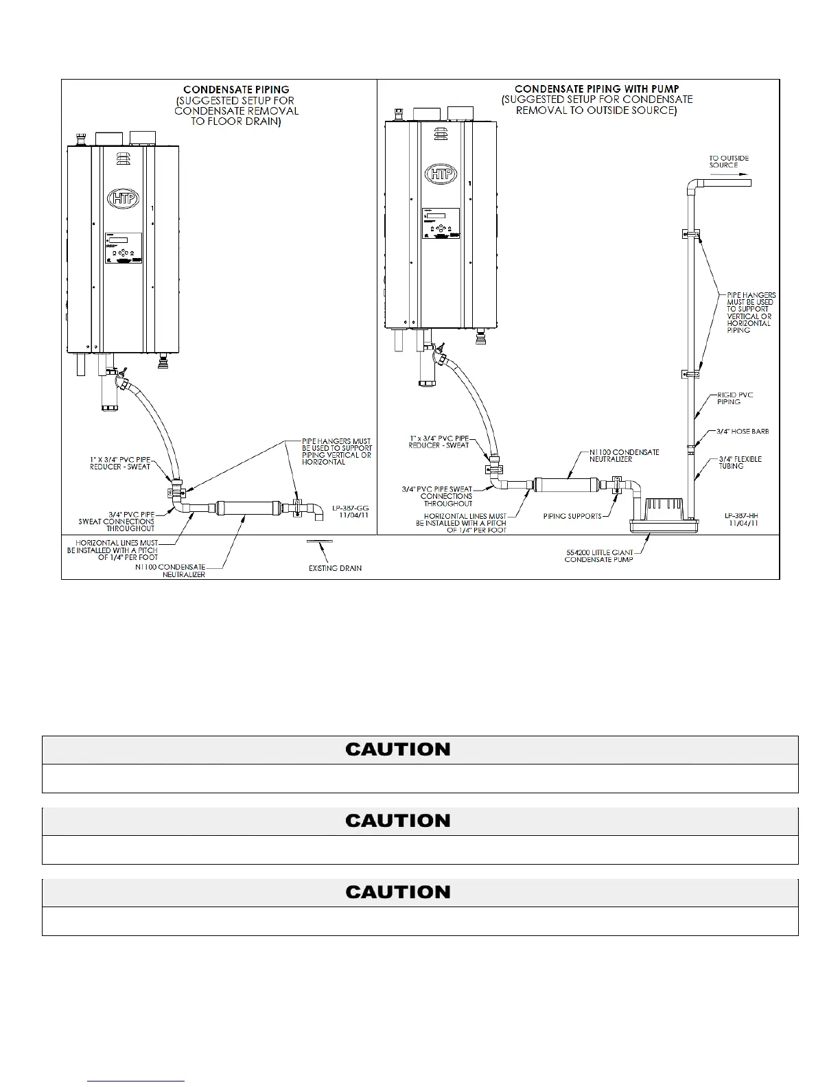
Figure 16 - Condensate Piping Suggestions
NOTES:
1. Condensate line must be pitched at least 1/4" per foot to properly drain. If this cannot be done, or a very long length of condensate hose is
used, you must increase the condensate line to a minimum of 1” ID and place a tee in the line after the condensate neutralizer to properly
reduce vacuum lock in the drain line.
2. Plastic pipe should be the only material used for the condensate line. Steel, brass, copper, or other materials will be subject to corrosion or
deterioration.
3. NEVER install condensate lines outside. It is very important that the condensate line is not exposed to freezing temperatures or any type of
blockage. Damages due to frozen or blocked condensate lines ARE NOT covered by warranty.
4. Support of the condensate line may be necessary to avoid blockage of the condensate flow.
If using a condensate pump, select one approved for use with condensing boilers and furnaces. The pump should have an overflow
switch to prevent property damage from condensate spillage.
It is very important that the condensate piping be no smaller than ¾”. To prevent sagging and maintain pitch, condensate piping should
be supported with pipe supports, and pitched ¼” per foot to allow for proper drainage.
The condensate line must remain unobstructed, allowing free flow of condensate. If condensate freezes in the line, or if line is
obstructed in any other manner, condensate can exit from the tee, resulting in potential water damage to property.

Table of Contents

Other manuals for HTP EFT-155

Related product manuals