EasyManua.ls Logo

Hubbell EMV - Heater Filling Procedure; Electrical Installation Steps; Final Installation Checks; Recirculation Package Description

Hubbell EMV
20 pages
Print Icon
To Next Page IconTo Next Page
To Next Page IconTo Next Page
To Previous Page IconTo Previous Page
To Previous Page IconTo Previous Page
Loading...
7
FILLING THE HEATER
1. Completely close the drain valve.
2. Open the highest tepid water outlet to allow all air to escape from piping.
3. The black plastic knob on the air vent valve must be opened two turns to allow air to
escape from the system.
4. Open the valve to the cold water inlet and allow the heater and piping system to
completely fill, as indicated by a steady flow of water from the open outlet.
ELECTRICAL INSTALLATION
1. Enter junction box with properly sized feeder leads.
2. Connect these power leads to wires enclosed in junction box with wire nuts.
3. All other electrical connections are made at the factory; therefore, no other electrical
connections are necessary.
FINAL CHECKS
1. Check all connections for tightness.
2. Ensure that all the above steps are completed.
3. After the water is heated for the first time, monitor the water temperature as described
in Section III, Quarterly Inspection.
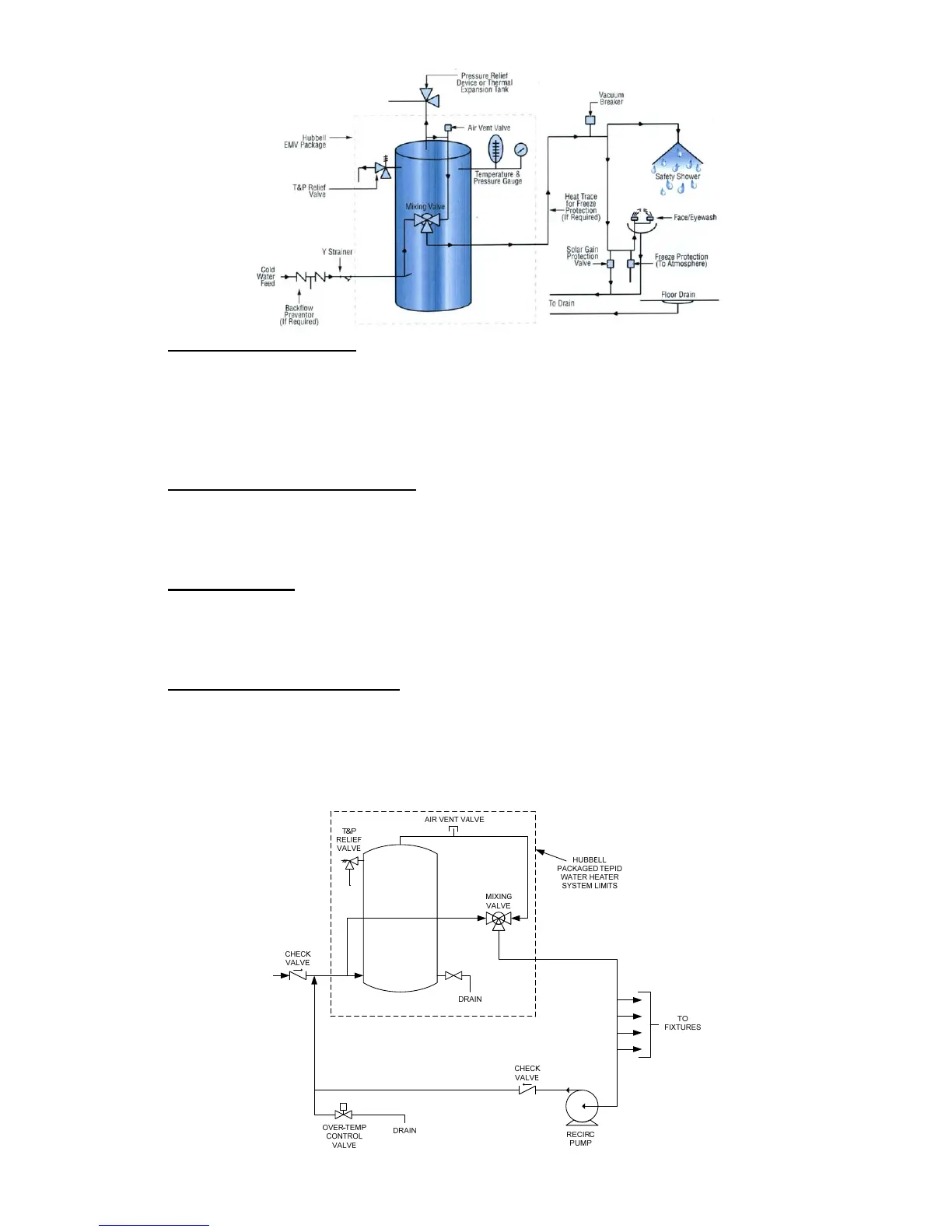
RECIRCULATION PACKAGE
A recirculation loop can be used to provide tepid water at the emergency fixtures for
applications where the water heater is a great distance away. This loop usually continuously
recirculates the water via a small pump that returns the water to the heater. The water
returned from the loop feeds back into the packaged water heater system. Therefore, the
loop is continuously maintained at the mixing valve temperature thus assuring proper
temperature water at the fixtures.

Related product manuals