EasyManua.ls Logo

Huber 405 - Page 6

Default Icon
98 pages
Print Icon
To Next Page IconTo Next Page
To Next Page IconTo Next Page
To Previous Page IconTo Previous Page
To Previous Page IconTo Previous Page
Loading...
OPERATION MANUAL
Unistat® V2.0.0en/09.06.16//15.09
6
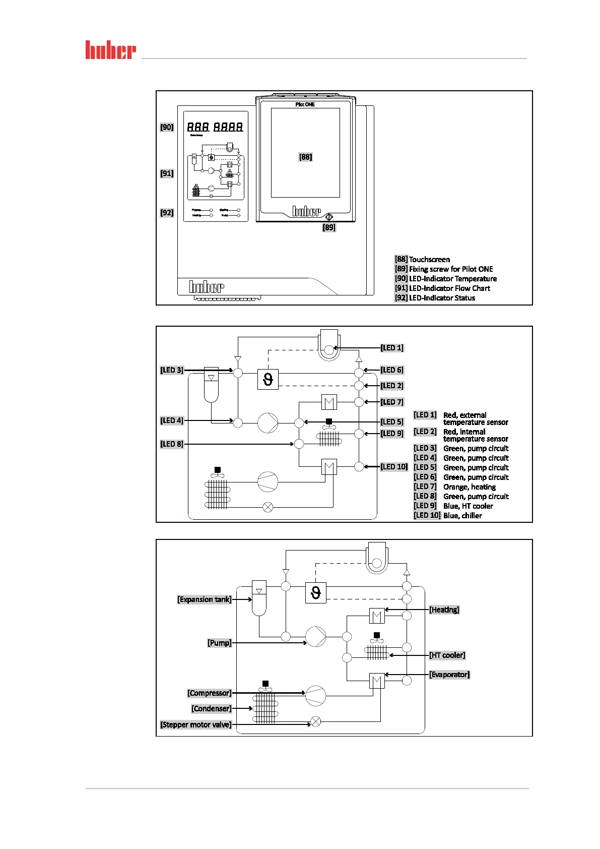
“Unistat Control ONE“
and „Pilot ONE“
Description of the
LEDs in the flow dia-
gram
Components illustrat-
ed in the
LED flow diagram

Table of Contents

Related product manuals