EasyManua.ls Logo

Hunter 28698 - Preparation of the Fan Site; Step 1 - Selecting the Fan Location

Hunter 28698
16 pages
Print Icon
To Next Page IconTo Next Page
To Next Page IconTo Next Page
To Previous Page IconTo Previous Page
To Previous Page IconTo Previous Page
Loading...
3
42444-02 • 11/01/10 • Hunter Fan Company
Paso 1 - Selección del sitio del ventilador
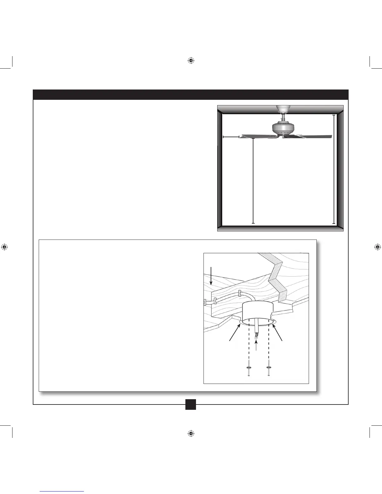
La adecuada ubicación y fi jación del ventilador a la estructura el
edificio son indispensables para obtener una operación segura y
confi able, una máxima eficiencia y un ahorro de energía.
Elija un sitio para el ventilador donde:
• Ningún objeto pueda entrar en contacto con las paletas en
rotación durante operación normal.
• Las paletas del ventilador estén por lo menos a 7 pies (2.10 m) por
encima del piso y el techo al menos a 8 pies (2.40 m) de altura.
• Las paletas del ventilador no tengan obstrucciones al fl ujo de aire
como paredes o postes a menos de 30” (75 cm) de las puntas de
las paletas.
• El ventilador esté directamente debajo de una viga o soporte de
apoyo que sostenga la caja de salida y todo el peso del ventilador.
Lista de comprobación para sitio de ventilador existente
Si desea usar un sitio de un ventilador existente, verifi que la siguiente lista de
comprobación para determinar si el sitio es aceptable y seguro para su nuevo
ventilador Hunter. Si no puede verifi car todos los ítems, prepare un nuevo sitio
para el ventilador como se describe en esta página.
Sistema de soporte del ventilador
• El ventilador se fi ja directamente a la estructura del edifi cio.
• El sistema de apoyo del ventilador soportará todo el peso del ventilador y el kit de
luz.
Agujero de techo
• El agujero de la caja de salida está directamente debajo de la viga del soporte de
apoyo.
Caja de salida
• La caja de salida es octagonal de 4” x 1-1/2” (o como se especifi que por el
fabricante del soporte de apoyo).
• La caja de salida está asegurada a la viga o al soporte de apoyo por tornillos para
madera y arandelas a través de los agujeros internos de la caja.
• Los agujeros externos de la caja de salida están alineados con la viga o el soporte
de apoyo.
• La parte inferior de la caja de salida está empotrada por lo menos 1/16” en el
techo.
Cableado
• El cable eléctrico está fi jado a la caja de salida por un conector aprobado.
• Seis pulgadas de los extremos de los alambres se extienden fuera de la caja de
salida.
Si el sitio del ventilador existente es adecuado, consulte el manual de su ventilador y
comience con 2 • Instalación de la placa de techo.
7 pies (2.10 m)
como mínimo
al piso
8 pies (2.40 m)
como mínimo de
altura del techo
30” (75
cm) desde
la pared u
obstrucción
más cercana
Sitio adecuado de ventilador existente
Sistema de soporte
del ventilador
Sistema de soporte
del ventilador
Cableado
Caja de salida
Preparación del sitio del ventilador

Other manuals for Hunter 28698

Related product manuals