EasyManua.ls Logo

Hussmann CRFD - General Instructions; Shipping Damage; Concealed Loss or Damage; Shortages

Hussmann CRFD
20 pages
Print Icon
To Next Page IconTo Next Page
To Next Page IconTo Next Page
To Previous Page IconTo Previous Page
To Previous Page IconTo Previous Page
Loading...
20
2 of 20
CRFD
Technical Data Sheet
Rev A
S
p
ecialt
y
Products
CRFD
Engineering
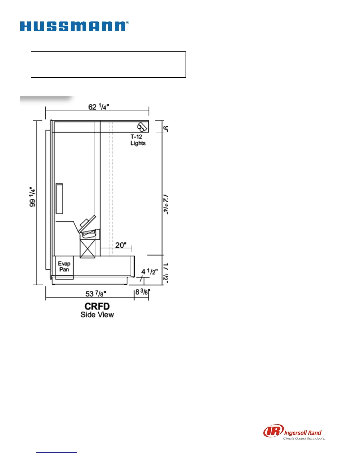
CROSS SECTION

Other manuals for Hussmann CRFD

Related product manuals