EasyManua.ls Logo

Hussmann D5X-LEP - Engineering Plan Views; Physical Data

Hussmann D5X-LEP
8 pages
Print Icon
To Next Page IconTo Next Page
To Next Page IconTo Next Page
To Previous Page IconTo Previous Page
To Previous Page IconTo Previous Page
Loading...
2 of 8 D5X-LEP Technical Data Sheet
HUSSMANN CORPORATION, Bridgeton, MO 63044-2483 U.S.A.
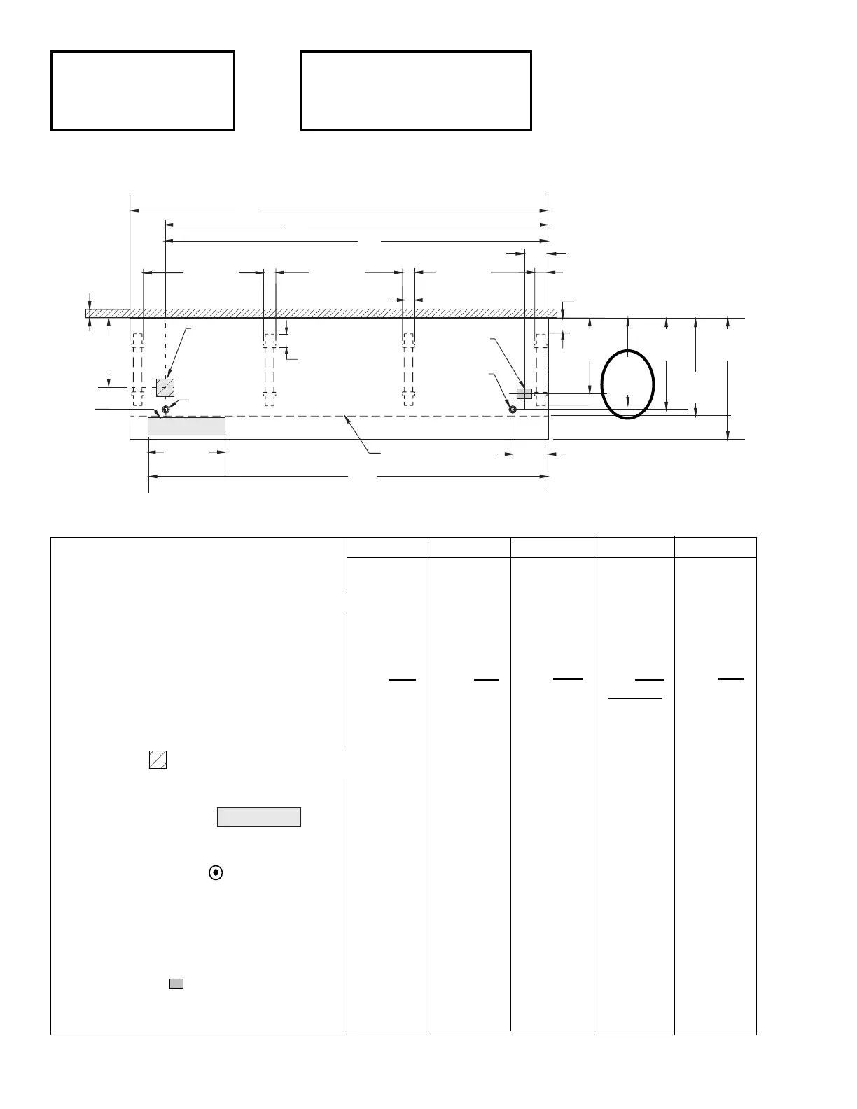
Engineering
Plan Views
Dimensions shown as in. and (mm).
Dairy & Delicatessen
10-2004
NOTE: Case-to-Case Electrical Connections
are made IN FRONT OF SPLASHGUARD.
4
3
/4 (120)
Splashguard
31
5
/8
(804)
42
(1064)
A
41
1
/2
(1054)
3 In.
(77 mm)
Required
Air Gap
Refrigeration
Outlet
Electrical
Stub Up Area
6 x 6
(152x152)
Waste Outlet
Waste Outlet
FRONT
26
1
/4
(665)
B
D
8 (203)
4
1
/2 (115)
12
1
/8 (307)
41
1
/2
(1054)
43
7
/8
(1114)
C
Wireway
4
3
/4 (120)
26
1
/2
(673)
4
1
/4 (108)
24
(612)
33
1
/2
(851)
Electrical
Field
Connection
30
1
/4
(768)
D5X
4 ft 6 ft 8 ft 10 ft 12 ft
General
(A) Case Length (without ends or partitions) 48
3
/8 (1229) 72
3
/8 (1838) 96
3
/8 (2448) 120
1
/2 (3061) 144
1
/2 (3670)
(Each end and insulated partition adds 1
1
/2 in. (38 mm) to case line up.)
Maximum O/S dimension of case back to front
(includes bumper) 42 (1064) 42 (1064) 42 (1064) 42 (1064) 42 (1064)
Back of case to front of splashguard 33
1
/2 (851) 33
1
/2 (851) 33
1
/2 (851) 33
1
/2 (851) 33
1
/2 (851))
Back of case to O/S edge of front leg 30
1
/
4 (768) 30
1
/
4 (768) 30
1
/
4 (768) 30
1
/
4 (768) 30
1
/
4 (768)
Distance between edges of external legs and center legs NA 29
1
/2 (750) 41
1
/2 (1054) 29
1
/2 (749) 41
1
/2 (1054)
Distance between edges of center legs NA NA NA 43
7
/8 (1114) 43
7
/8 (1114)
Distance between front legs and splashguard 2
3
/4 (70) 2
3
/4 (70) 2
3
/4 (70) 2
3
/4 (70) 2
3
/4 (70)
Electrical Service (Electrical Field Wiring connection point)
(B) RH End of case to center of stub up area 36
1
/4 (921) 60
1
/4 (1530) 84
1
/4 (2140) 108
1
/4 (2750) 132
3
/8 (3363)
Back of case to center of stub up area 24 (612) 24 (612) 24 (612) 24 (612) 24 (612)
Length of electrical wireway 26
1
/2 (673) 26
1
/2 (673) 26
1
/2 (673) 26
1
/2 (673) 26
1
/2 (673)
(C) RH End of case to LH end of wireway 42
1
/8 (1070) 66
1
/8 (1680) 90
1
/8 (2289) 114
1
/4 (2902) 138
1
/4 (3511)
Waste Outlets (One each end)
(D) RH End of case to the center of LH waste outlet 36
1
/4 (921) 60
1
/4 (1530) 84
1
/4 (2140) 108
1
/4 (2750) 132
3
/8 (3363)
RH End of case to the center of RH waste outlet 12
1
/8 (307) 12
1
/8 (307) 12
1
/8 (307) 12
1
/8 (307) 12
1
/8 (307)
Back O/S of case to center of waste outlets 31
5
/8 (804) 31
5
/8 (804) 31
5
/8 (804) 31
5
/8 (804) 31
5
/8 (804)
Schedule 40 PVC drip pipe 1
1
/4 (32) 1
1
/4 (32) 1
1
/4 (32) 1
1
/4 (32) 1
1
/4 (32)
Refrigeration Outlet
Back of case to center of refrigeration outlet 26
1
/4 (665) 26
1
/4 (665) 26
1
/4 (665) 26
1
/4 (665) 26
1
/4 (665)
RH end of case to center of refrigeration outlet 8 (203) 8 (203) 8 (203) 8 (203) 8 (203)
PHYSICAL DATA
Merchandiser Drip Pipe (in.) 1
1
/4
Merchandiser Liquid Line (in.)
3
/8
Merchandiser Suction Line (in.)
7
/8
Wireway

Related product manuals