EasyManua.ls Logo

Hussmann microSC VRL1B - Page 22

Hussmann microSC VRL1B
46 pages
Print Icon
To Next Page IconTo Next Page
To Next Page IconTo Next Page
To Previous Page IconTo Previous Page
To Previous Page IconTo Previous Page
Loading...
P/N 3034040_H U.S. & Canada 1-800-922-1919 • Mexico 1-800-890-2900 • www.hussmann.com
22 ElEctrIcal / rEfrIgEratIon
RTN400 Page 8/130
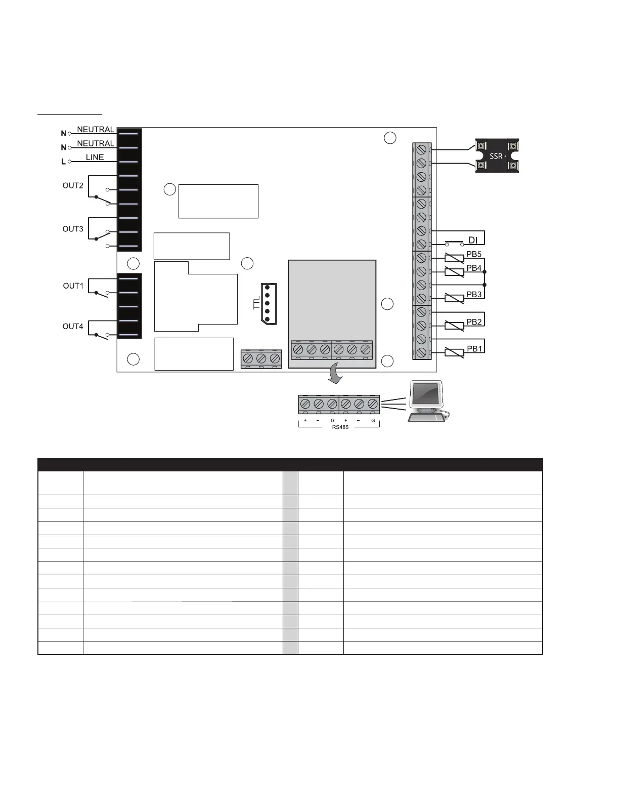
CONNECTIONS
TERMINALS
LINK
2
KEYB
{
{
RS485
OPTIONAL
ELIWELL
ELIWELL
33
32
31
29
30
28
27
26
25
24
22
20
18
23
21
19
1
2
3
5
9
4
11
12
10
GND D
GND
GND
D
OC
12V
D
12V
15 16 17
34 35 36 37 38 39
A
14
13
6
8
7
OUT2 (1HP)
OUT1 (2HP)
OUT3 (8A)
OUT4 (8A)
* N.B.: analogue inputs PB1...PB5 can also be configured as Digital Inputs DI.
TERMINALS
1-2 NEUTRAL.
These are power supply terminals. 15-16-17
Connection to KDEPlus or KDWPlus external
keyboard or ECPlus echo module.
3 LINE. These are power supply terminals. 19-18 PB1 probe connection.
4 OUT2 Shared Terminal 21-20 PB2 probe connection.
5 N.O. OUT2 23-22 PB3 probe connection.
6 N.C. OUT2 23-24 PB4 probe connection.
7 OUT3 Shared Terminal 23-25 PB5 probe connection.
8 N.C. OUT3 27-26 Digital input (DI).
9 N.O. OUT3 28-29 LINK
2
. Connection 1 - local area network.
10 OUT1 Shared Terminal 30-31 LINK
2
. Connection 2 - local area network.
11 N.O. OUT1 32-33 Open Collector Output (OC).
12 Not Used A TTL Unicard/DMI/Multi Function Key connection
13 OUT4 Shared Terminal 34-35-36 RS485. Connection 1 - Supervision Gateway.
14 N.O. OUT4 37-38-39 RS485. Connection 2 - Supervision Gateway.

Related product manuals