EasyManua.ls Logo

Hytera HD785 - Block Diagram

Hytera HD785
513 pages
Print Icon
To Next Page IconTo Next Page
To Next Page IconTo Next Page
To Previous Page IconTo Previous Page
To Previous Page IconTo Previous Page
Loading...
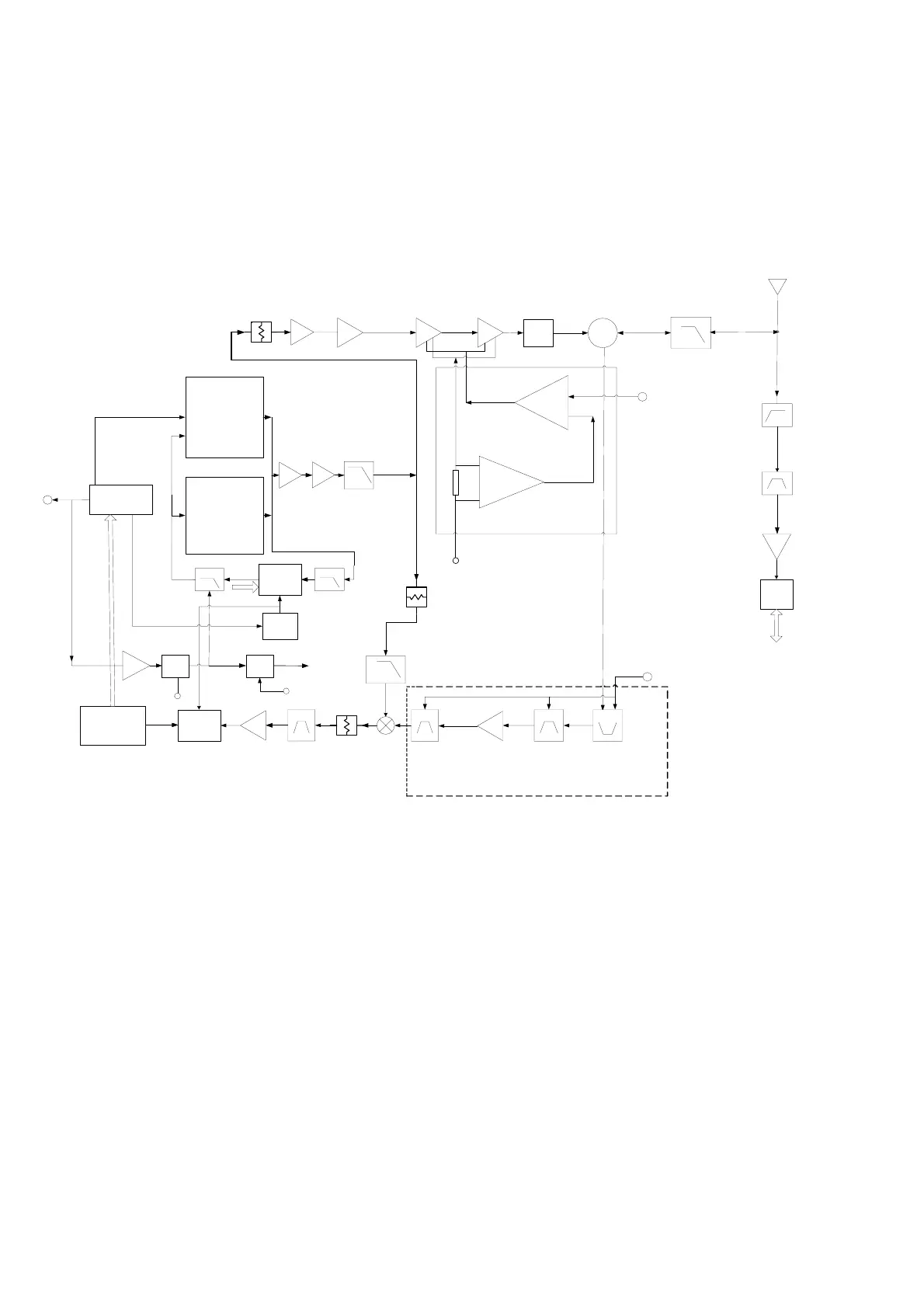
Pre-Drive2 Drive-stage
Final-stage
Tx/Rx Switch
Low-pass Filter
Tx_VCO
AD9864
Frequency
Synthesizer
Rx_VCO
Band-pass Filter1
Low-Noise Amp
Band-pass Filter2
Mixer
IF FilterIF Processor
IF Amp
Ref. Osc
19.2MHZ
.
MOD1
MOD2+Freq error shift
OMAP
4CH DAC
GPS
module
BPF
HPF
ANT
Microstrip
Matcher
TV1/APC
LPF
RX/TX
VCO
amplifier
TO omap
TV1 /APC
From OMAP
TV1/APC
Reference OSC signal
CV Buffer
Pi Attenuator
1 2
BATT+
Stop band filter
Adapt
SW
Adapt control
APC module
Low-Noise Amp
OP
Pre-driver1
RX/TX
VCO buffer
LPF
LPF
Pi Attenuator
1 2
CV
SW
CV-read
control
CV out
1 2
Pi Attenuator
Pi Attenuator
46
PD70X/PD70XG/PD78X/PD78XG/HD705/HD705G/HD785/HD785G
Block Diagram (RF Section)
7.5 Block Diagram

Table of Contents

Other manuals for Hytera HD785

Related product manuals