EasyManua.ls Logo

IBC HC 33-160 - Installation

Default Icon
80 pages
Print Icon
To Next Page IconTo Next Page
To Next Page IconTo Next Page
To Previous Page IconTo Previous Page
To Previous Page IconTo Previous Page
Loading...
1-1
INSTALLATION
HC SERIES BOILERS HC 13-50, HC 23-84, HC 29-106, HC 33-124, HC 20-125, HC 33-160
INSTALLATION1.0
GENERAL
HC Series gas-red modulating boilers are low pressure, fully condensing units
having variable input ranges (see specication chart - inside, front cover). The
boilers are approved as “Category IV” vented appliances using Direct Vent
(sealed combustion).
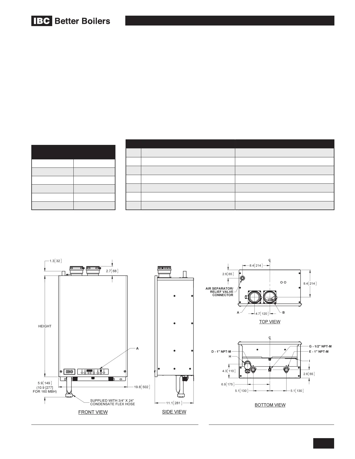
Figure 1 shows outer case dimensions and piping and electrical holes. Use this
diagram to nd a suitable location for the boiler. See also Section 1.3 Location.
DESCRIPTION HC SERIES BOILERS
A Exhaust Outlet 3" Schedule 40
B Combustion Air 3" Schedule 40
E Heating Water Inlet (Return) 1" Male NPT
F Heating Water Outlet (Supply) 1" Male NPT
G Gas Inlet 1/2" Male NPT
H Condensate Outlet 3/4" Hose
I Knock-out (3) 1/2"
Table 1: Connections
1.1
Figure 1a: Dimensions / Connections for HC Series Figure 1b: Dimensions / Connections for HC Series
MODEL
NUMBER
HEIGHT
HC 13-50 26.6" [676]
HC 23-84 26.6" [676]
HC 29-106 29.0" [736]
HC 33-124 31.3" [796]
HC 20-125 31.3" [796]
HC 33-160 31.3" [796]

Related product manuals