EasyManua.ls Logo

IBM RS/6000 7014-S00 - Page 77

IBM RS/6000 7014-S00
156 pages
Print Icon
To Next Page IconTo Next Page
To Next Page IconTo Next Page
To Previous Page IconTo Previous Page
To Previous Page IconTo Previous Page
Loading...
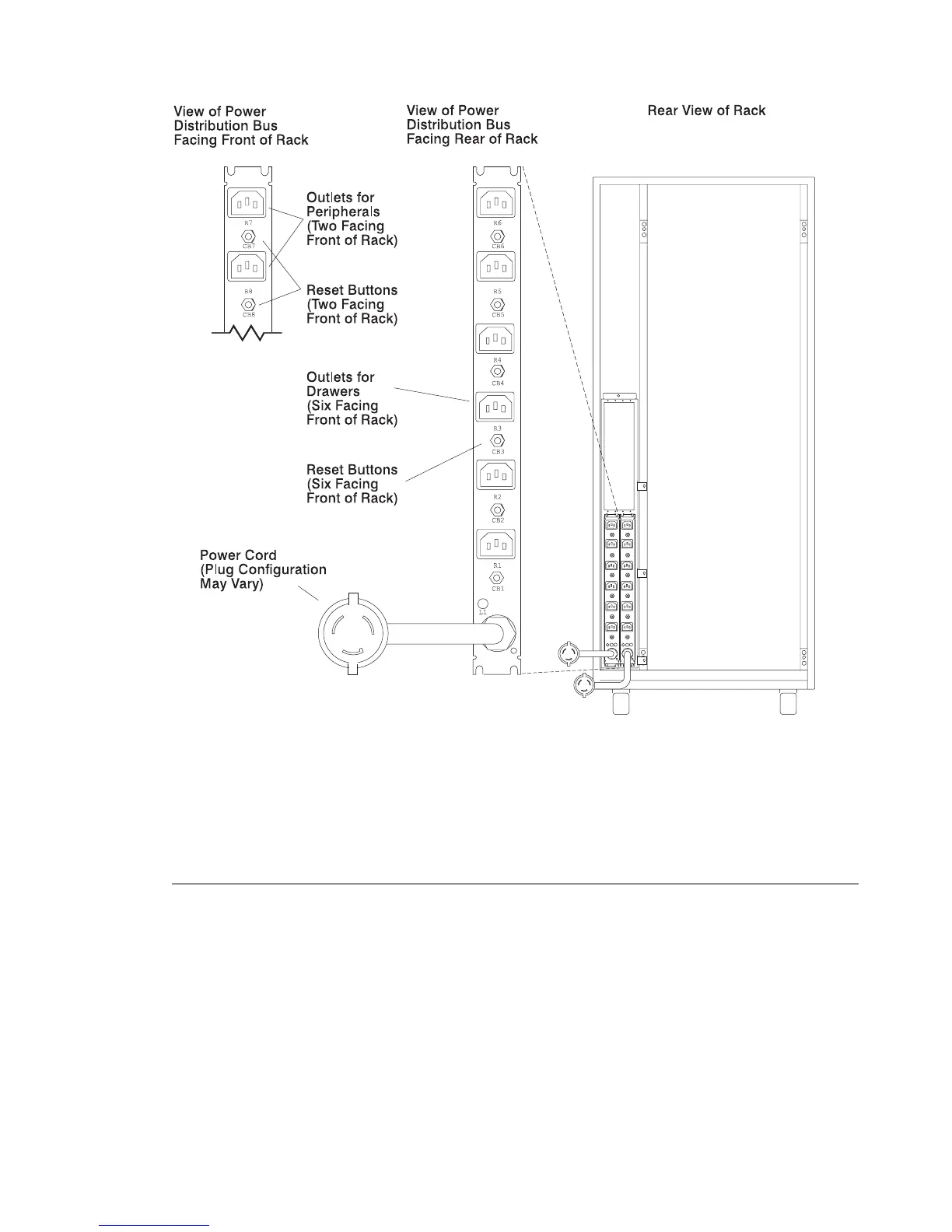
3. Follow the power-on procedure for the system installed in your rack to switch on
power to the system installed in the rack and drawers installed in your rack.
Refer to the service guide for the system installed in your rack for more
information.
4. Close the back door of the rack.
Power-Off Procedure with the Power Distribution Bus
1. Follow the power-off procedure for the system installed in the rack to switch off
both the system and all centrally controlled drawers. Refer to the service guide
for the system installed in your rack for more information.
Note: Because many drawers or devices can be connected to the system unit,
it may be impractical for you to switch off power to all the drawers or
devices and unplug their power cables.
Chapter 4. Removal and Replacement 4-3

Related product manuals