EasyManua.ls Logo

Icar MICROmatic - Allegato; Annex; Annexe D

Icar MICROmatic
Print Icon
To Next Page IconTo Next Page
To Next Page IconTo Next Page
To Previous Page IconTo Previous Page
To Previous Page IconTo Previous Page
Loading...
ICAR PQS MAT189 revJ jan18
25
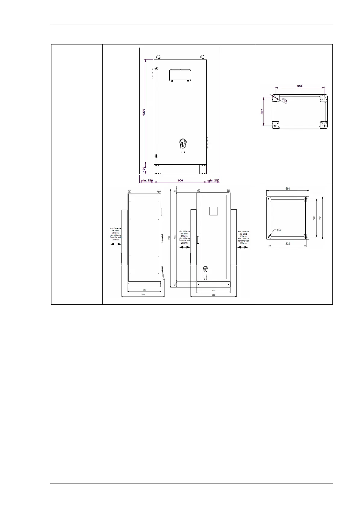
13 ALLEGATO / ANNEX / ANNEXE D
MINImatic IP55
FLOOR MOUNTING
FISSAGGIO A SUOLO
FIXATIONA AU SOL
M
ULT
Imatic IP55
Distance minimale du mur : 250mm
FLOOR MOUNTING
FISSAGGIO A SUOLO
FIXATIONA AU SOL
DISTANZA DA PARTE O ALTRA APPARECCHIATURA
DISTANCE FROM WALL OR OTHE EQUIPMENT
DISTANCE DU MUR OU D’AUTRE APPAREILLAGE
DISTANZA DA PARETE O ALTRA APPARECCHIATURA
DISTANCE FROM WALL OR OTHER EQUIPMENTE
DISTANCE DU MUR OU D’AUTRE APPAREILLAGE

Related product manuals