EasyManua.ls Logo

Icom IC-F21 - SYSTEM BLOCK DIAGRAM; TRANSCEIVER SYSTEM BLOCK DIAGRAM

Icom IC-F21
38 pages
Print Icon
To Next Page IconTo Next Page
To Next Page IconTo Next Page
To Previous Page IconTo Previous Page
To Previous Page IconTo Previous Page
Loading...
11 - 1
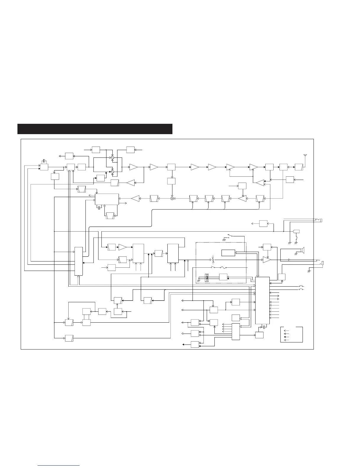
SECTION 11 BLOCK DIAGRAM
ANT
440–470MHz
Q1
2SK2974
D1 1SV307
D9,D10 MA77
D2
RB706F-40
Q2
2SK2973
Q3
2SC3585
Q4
2SC5107
VCO
SW
D3,D4
MA77
Q7
2SC5107
Q5
2SC5107
Q8 DTC144EU
Q9 XP1214
R5V
S5V
RX VCO
Q12
XP6501
Q10 2SC5085
D5 HVU350
Q11 2SC5085
D7 HVU350
LVIN
BUFF
Q13
2SK880
IC1
MB15A02PFV1
X1
CR-671A
REF
BAL
DEV
15.3MHz
Q18
2SC4116
REF
Q31
2SC4215
D19
HVC362
393.65–470MHz
DET
PLST
SO
SCK
UNLK
2nd MIXER
IF AMP
SQL AMP
DETECTOR
MOD
TX VCO
2ndLO
45.9 MHz
D6
MA368
IC3
TA31136FN
IF IC
NOIS
Q6
2SC5107
Q17
2SC4215
FI1
FL-313
46.35MHz
Q19
3SK272
1stLO
393.65–423.65 MHz
D15
HVU350
D14
HVU350
D13
HVU350
AGC
CONT
RSSI
Q33
3SK1829
PWR
DET
T4
IC2
TA75S01F
D12
HVU350
MUTE
SW
LPF
ANT
SW
PWR
AMP
YGR
AMP
YGR
AMP
PRE
DRIVE
APC
AMP
Q14
DTA144EU
TXC
EXT.MIC
T1
MC1
KUC3523
+5V
PTT
SW
Q22
UN911H
J4
HSJ1122 010010
T2
Q15
3SK293
PTT
T4
T3
1st MIXER
FI2
RSSI
450kHz
X2
CDBCA450CX24
ALFYM450F=K
SQLIN
MICDET
DEV
DET
D/A
T1
T2
T3
T4
Q21
DTC144EU
IC5C
NJM13403V
IC5B
NJM13403V
IC9
M62363FP
IC6
BU4066BCFV
IC5D
NJM13403V
IC6
BU4066BCFV
ANALOG
SW
ANALOG
SW
R1
AF VR
VOLIN
2ch VERSION
S1 AS-244-A13
VCC
CH SELECT
/EMERGENCY
S1
SW-A TP70QF4161
SW-B (EMER) SKHHLP014A
VOLOUT
CBI0
AF AMP
REG
AFON
SP+
SP–
Q19 2SB1132
Q20 XP6501
AFOUT
S3
J5
HSJ1456-01-220A
INT.SP
PTT
INT.MIC
F1
F2
EXT.SP
IC4
TA7368F
CLI,CLO
CLONE
CLONE
BUFF
Q32 DTC144TU
F1
F2
PTT
TXC
D17 RB706F-40
BATT
FUSE
F1
LED SW
Q1 XP4216
HV
CBI0
CBI1
CBI2
CBI3
RLED
TLED
TX LED
BUSY LED
DS1
LNJ107W5PRW
IC16
NJM12904V
SW
W/NNWC
DAST
SCK
SO
Q29
2SC4116
CTCSS/DTCS
REF
BAL
IC12A
NJM12904V
RESTO-
RATION
FIL
SW
FIL
SW
CDEC
IC12B
NJM12904V
Q30
XP1213
Q28
DTC144EU
ANALOG
SW
IC13
TC7S66FU
DUSE
CENC0
CENC1
CENC2
SENC0
SENC1
SENC2
SENC3
+5
REG
S5
REG
VCC
+5V
S5V
IC10
NJM2870
Q24
2SB1132
S5
CONT
Q23
DTA144EU
Q25
XP6501
EEPROM
RESET
CPU5V
RES
IC8
S-8094ANMP
RMUT
MMUT
DUSE
SO
SCK
EXST
IC15
SCK
ESDA
CPU
IC7
HD6433664
IC11
HN58X2416TI
X3
CR-702
BEEP
NOIS
RSSI
LVIN
BDET
TEMP
BATV
D16
MA77
SHIFT
SW
EXP-
ANDER
NWC
CSFT
S5C
R5C
T5C
BU4094BCFV
R5
REG
T5
REG
R5V
T5V
Q26
2SA1577
Q27
2SA1577
SDEC
IC5A
NJM13403V
Explanatory notes
COMMON LINE
TX LINE
RX LINE
CONTROL LINE
BPFBPFBPFBPF
RF
AMP
TX / RX
SW
BUFFBUFF
BUFF
ATT
XTRL
BPF
AMP
RIPPLE
FIL
LOOP
FIL
PLL
IC
BPF
LPF
x 3
CERAMIC
BPF
MIC
AF
AMP
LPF
AMP
HPF
HPF
LPF
LPF
BEEP
TONE
TONE
RMUT
RMUT
MMUT
CTCSS
R5C
LPF
DET
DET
LPF
MAIN UNIT
SW-A/SW-B UNIT

Other manuals for Icom IC-F21

Related product manuals