EasyManua.ls Logo

IDEAL imax W80P - Boiler Frame and Header Kits; Sequencer Control of Multiple Boilers

IDEAL imax W80P
56 pages
Print Icon
To Next Page IconTo Next Page
To Next Page IconTo Next Page
To Previous Page IconTo Previous Page
To Previous Page IconTo Previous Page
Loading...
21
- Installation & Servicing
INSTALLATION
PUSH
PUSH PUSH
333
2
3
2
1
33
2
1
99
9
1
6
4
6
10
6
7
5
ima5461
8
8
8
25
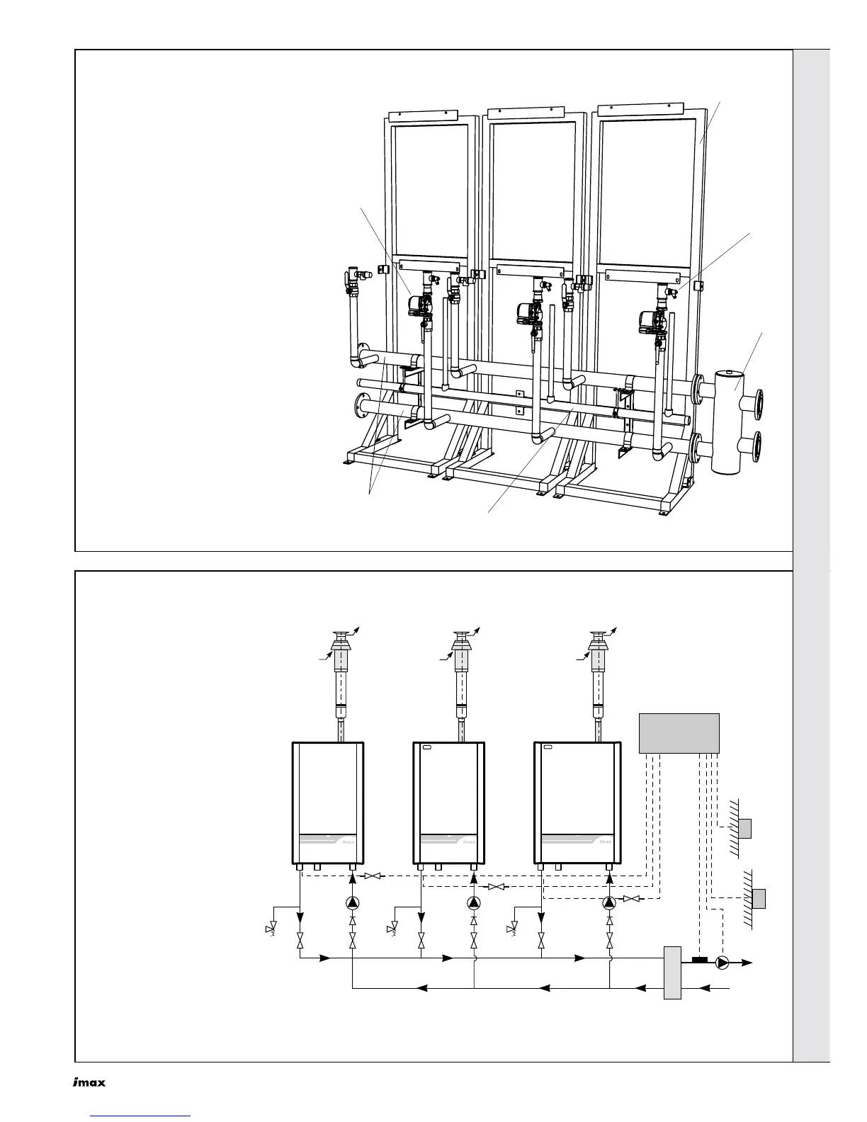
BOILER FRAME AND HEADER KITS
Individual boiler frame kits are available,
providing the option of mounting the
boilers away from the boiler house wall.
These frames can be bolted together for
multiple installations.
A selection of 2 and 3 boiler water and
gas header kits are available. These are
suitable for a combination of different
boilers.
26
SEQUENCER CONTROL OF MULTIPLE BOILERS
In installations where the heat load is
greater than the boiler capacity an
ideal solution is to use multiple
boiler arrangements.
The ideal way to control a multiple
boiler installation is with our
modulating sequencer
See below a typical installation with
our modulating sequencer kit. This
device is capable of controlling up to
5 boilers.
Legend
1. Non-return valve
2. Safety valve
3. Service valve
4. Mixing header
5. System pump
6. Modulating Sequencer kit
complete with outdoor
sensor and flow sensor
7. Flue gas terminal
8. Drain cock
9. Shunt pump
10.Room Sensor
LEGEND
1. Frame kit
2. 3 Blr. flow & return header kit
3. 3 Blr. gas header kit
4. Connection kit (includes essential
connection and valve components)
5. Mixing header
6. Pump Kit (supplied separately if required)
1
4
5
3
6
2
ima5462
INSTALLATION

Related product manuals