EasyManua.ls Logo

IFYIL BOSPHORUS - Page 48

Default Icon
Print Icon
To Next Page IconTo Next Page
To Next Page IconTo Next Page
To Previous Page IconTo Previous Page
To Previous Page IconTo Previous Page
Loading...
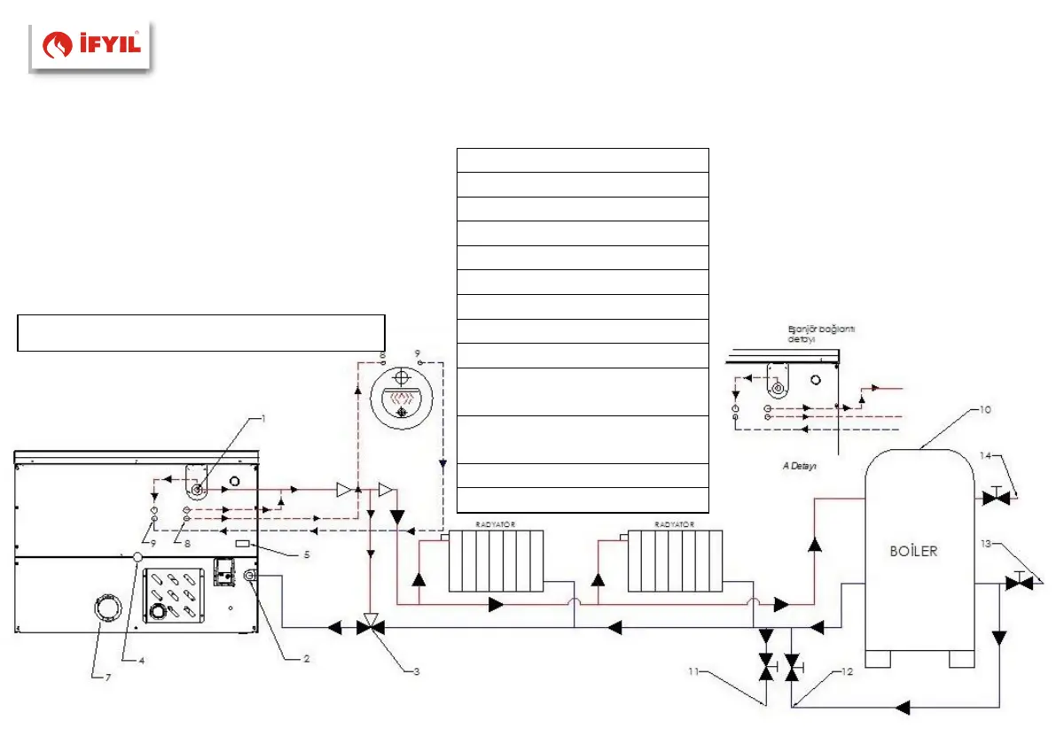
1- Radiator water outlet
2- Radiator water inlet
3- Anti-condensation valve
4- Safety valve evacuation
5- Power supply inlet
7- Chimney outlet
8- Exchanger hot water outlet
9- Exchanger cold water inlet
10- Boiler
11- Plumbing water unloading
valve
12- Plumbing water loading
valve
13- Mains water inlet line
14- Sanitary hot water line
BOSPHORUS PLUMBING SCHEMA

Table of Contents

Related product manuals