EasyManua.ls Logo

Igema SMLC2 - 5 Assembly and Installation; Installation Dimensions and Descriptions

Igema SMLC2
32 pages
Print Icon
To Next Page IconTo Next Page
To Next Page IconTo Next Page
To Previous Page IconTo Previous Page
To Previous Page IconTo Previous Page
Loading...
12
5. Assembly and Installation
The limiter is supplied in a plastic plug-in housing for fitting into switch cabinets. The housing
is designed for quick fitting with a spring catch for the DIN EN 50022 standard 35 mm carrier
rail and for screw fixing on a mounting plate.
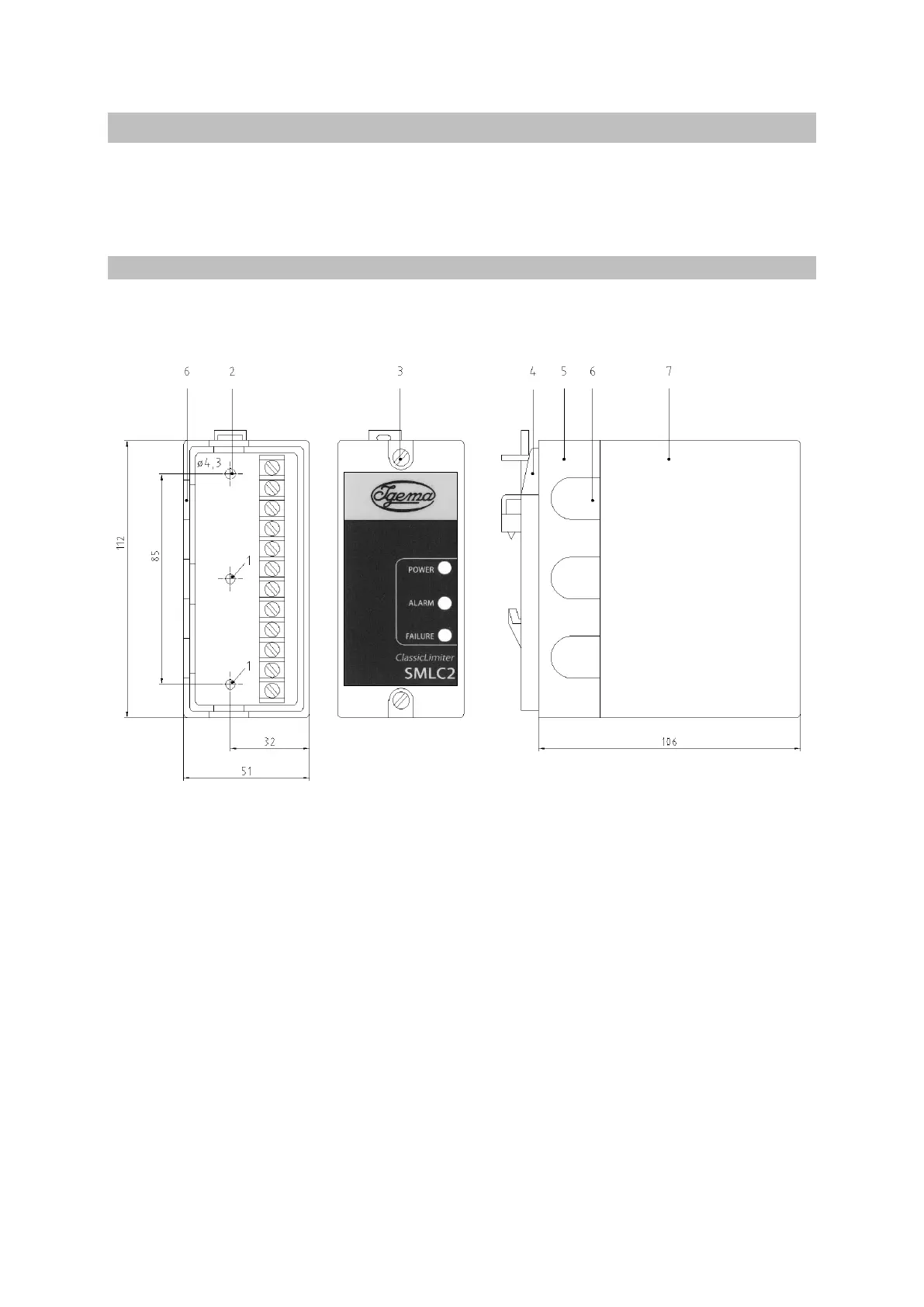
5.1 Installation dimensions and descriptions
Base Front view Side view
with connection terminals
1 Screws for snap fixing
2 Holes, ø 4,3 mm
3 Fixing screws
4 Snap fixing
5 Holder
6 Cable feedthrough
7 Hood