EasyManua.ls Logo

Igema SMLC2 - Page 19

Igema SMLC2
32 pages
Print Icon
To Next Page IconTo Next Page
To Next Page IconTo Next Page
To Previous Page IconTo Previous Page
To Previous Page IconTo Previous Page
Loading...
19
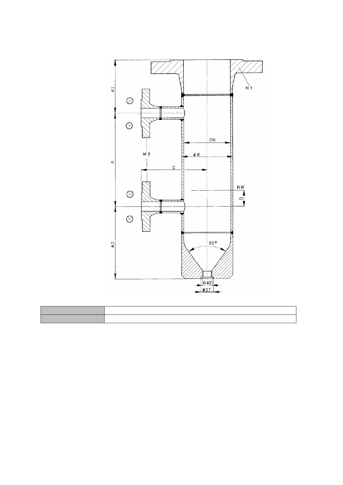
Illustration of add-on-housing
Materials
Flange
1.0460
Pipes
St35.8 / 16 Mo 3 (according to pressure range)
Stainless steel and ASME-compliant materials upon request.