EasyManua.ls Logo

IMER TR 225 - Schema Elettrico - Wiring Diagram

IMER TR 225
Print Icon
To Next Page IconTo Next Page
To Next Page IconTo Next Page
To Previous Page IconTo Previous Page
To Previous Page IconTo Previous Page
Loading...
TR 225 (110V 50Hz)
11
IMER INTERNATIONAL S.p.A.
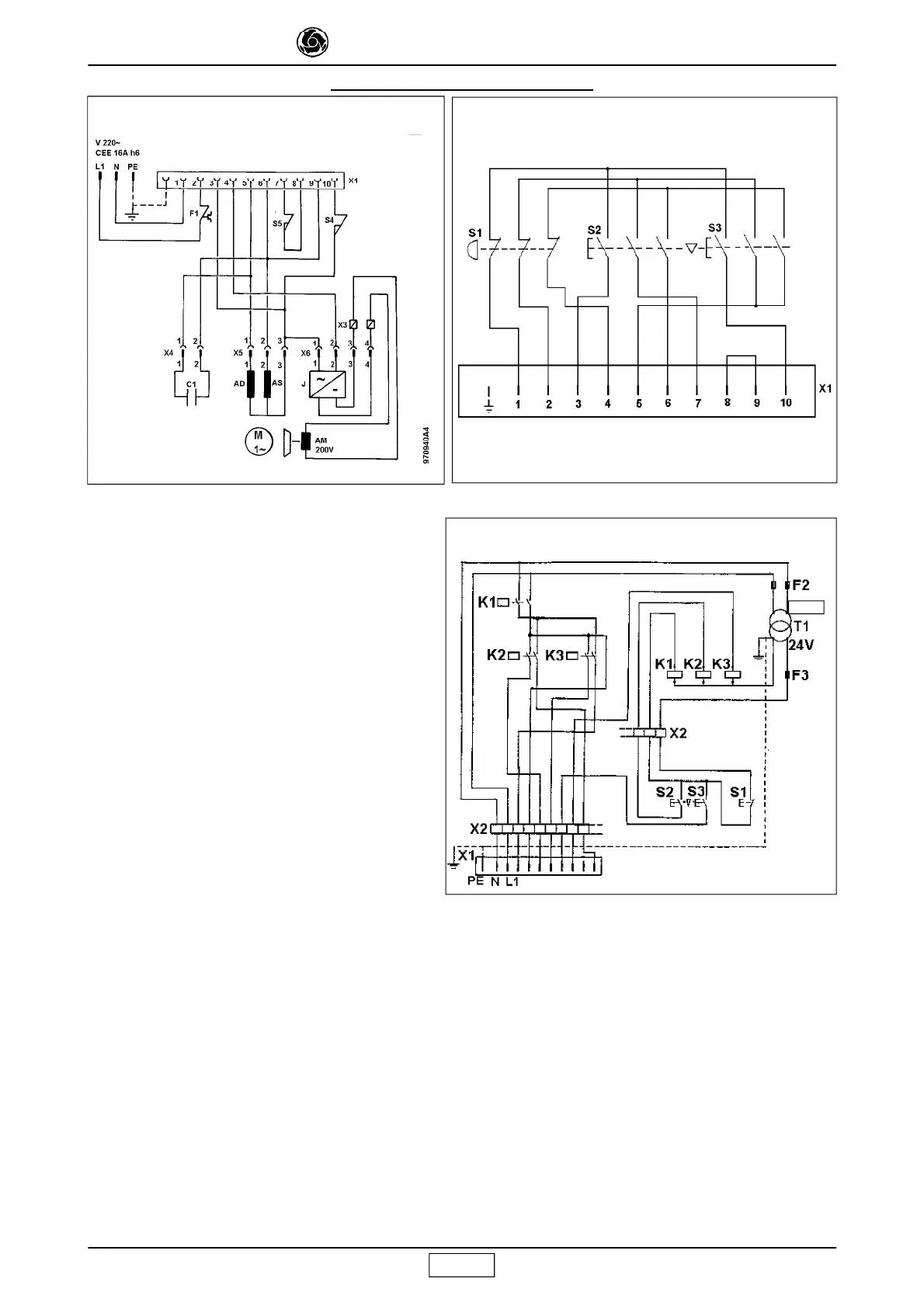
SCHEMA ELETTRICO - WIRING DIAGRAM
Fig.8
110 V
Fig.7
Fig.6
I
QUADRO (FIG.8)
PE
CONDUTTORE DI PROTEZIONE
L1
CONDUTTORE DI LINEA FASE
N CONDUTTORE DI LINEA NEUTRO
F1
INTERRUTTORE TERMICO
S4
FINECORSA DISCESA
S5
FINECORSA SALITA
X1
CONNETTORE COMANDI
X3
MORSETTI MAGNETE
X4
CONNETTORE CONDENSATORE
X5
CONNETTORE MOTORE
X6
CONNETTORE ALIMENTATORE MAGNETE
S
ALIMENTATORE MAGNETE
AS
AVVOLGIMENTO MOTORE SALITA
AD
AVVOLGIMENTO MOTORE DISCESA
AM
AVVOLGIMENTO MAGNETE FRENO
TELECOMANDO (FIG.6)
L1
CONDUTTORE DI LINEA
N CONDUTTORE DI LINEA NEUTRO
PE
CONDUTTORE DI PROTEZIONE
T1
TRASFORMATORE
X1
CONNETTORE
X2
MORSETTIERA
F2
FUSIBILE TRASF. (INGRESSO)
F3
FUSIBILE TRASF. (USCITA)
K1
RELE' ARRESTO
K2
RELE' DISCESA
K3
RELE' SALITA
S1
PULSANTE ARRESTO
S2
PULSANTE DISCESA
S3
PULSANTE SALITA
PULSANTIERA (FIG.7)
S1
PULSANTE ARRESTO
S2
PULSANTE SALITA
S3
PULSANTE DISCESA
X1
CONNETTORE COMANDI
GB
SWITCHBOARD (FIG.8)
PE
EAR
TH WIRE
L1
LIVE WIRE
N
NEUTRAL WIRE
F1
THERMAL OVERLOAD
S4
DOWN LIMIT SWITCH
S5
UP LIMIT SWITCH
X1
PENDANT
CONTROL
CONNECT
OR
X3
MAGNET
TERMINALS
X4
CAP
ACIT
OR CONNECT
OR
X5
MOT
OR CONNECT
OR
X6
MAGNET
POWERING CONNECT
OR
S BRAKE RECTIFIER
AS
MOT
OR WINDING, UP
AD
MOT
OR WINDING, DOWN
AM
BRAKE MAGNET WINDING
CONTROL BOARD (FIG.7)
S1
ST
OP
BUTTON
S2
UP
BUTT
ON
S3
DOWN BUTT
ON
X1
PENDANT CONTROL PLUG
REMOTE CONTROL (FIG.6)
L1
LIVE WIRE
N
NEUTRAL WIRE
PE
EAR
TH WIRE
T1
TRANSFORMER
X1
CONTROL
CONNECT
OR
X2
SWITCHBOARD
TERMINALS
F2
TRANSFORMER. FUSE
F3
AUXILIARY TRANSFORMER. FUSE
K1
ST
OP
CONT
ACTOR
K2
UP
CONT
ACT
OR
K3
DOWN CONT
ACT
OR
S1
ST
OP
BUTTON
S2
UP
BUTT
ON
S3
DOWN BUTT
ON

Related product manuals