EasyManua.ls Logo

IMO VXSM550-3 - Basic Connection Diagram

Default Icon
114 pages
Print Icon
To Next Page IconTo Next Page
To Next Page IconTo Next Page
To Previous Page IconTo Previous Page
To Previous Page IconTo Previous Page
Loading...
2-3 Installation and Connection
2
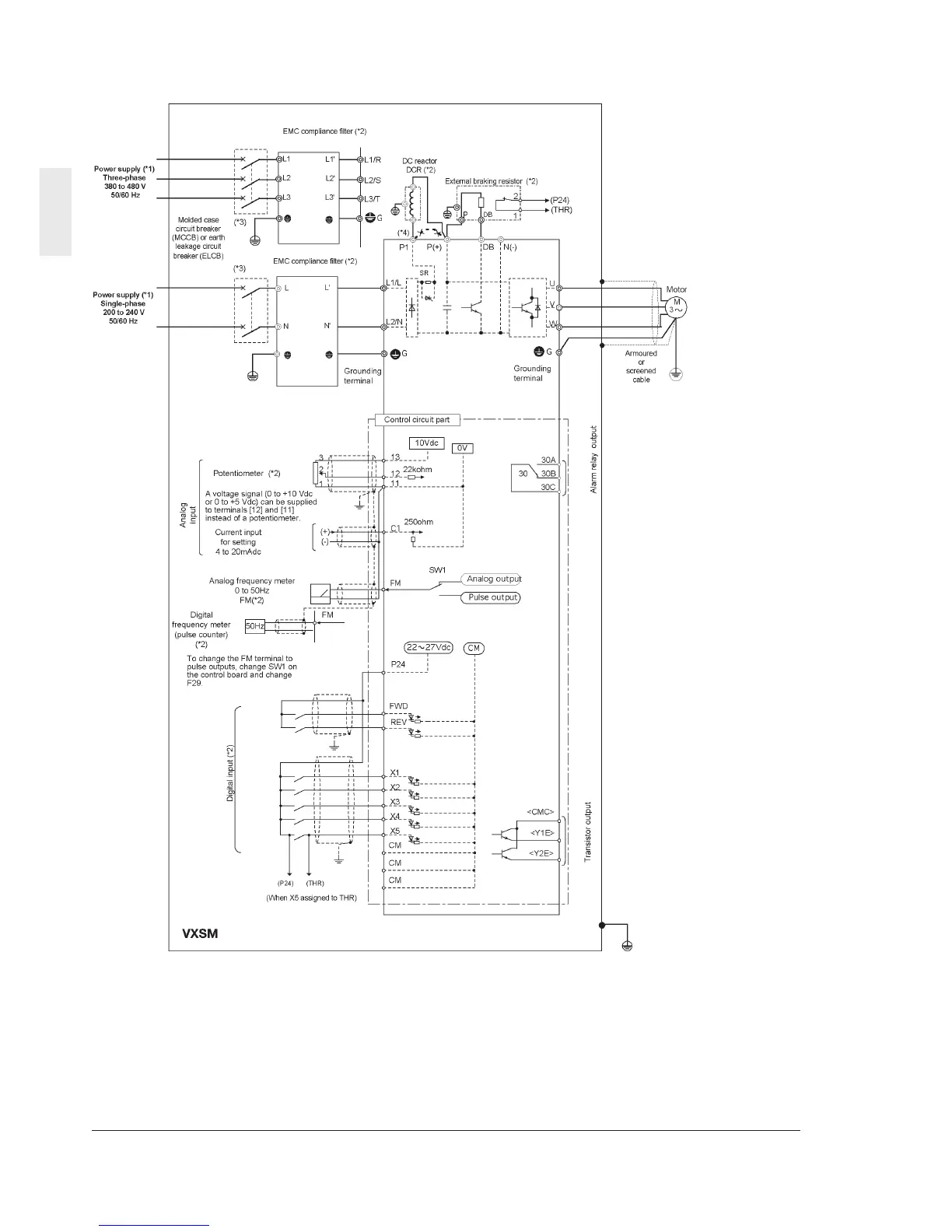
*1) Supply a source voltage
suitable for the rated
voltage of the inverter.
*2) Optional part. Use when
necessary.
*3) Peripheral equipment.
Use when necessary.
*4) To connect a DC reactor
(DCR) for power factor
correcting, remove the
jumper between the P1
and P (+) terminals.
Basic connection diagram
Enclosure

Table of Contents

Related product manuals